Kiến trúc xanh là một trong những đặc trưng trong các công trình của Diamond Housing. Tuy nhiên, với nhà phố, mặt tiền hẹp và không thể mở rộng sang hai bên, việc kết hợp kiến trúc xanh cần rất thông minh để tận dụng hết không gian của công trình. Thiết kế và thi công trọn gói A.T House, Diamond Housing đã triển khai kết hợp nhiều giải pháp kiến trúc khác nhau để mang tới cho gia chủ không gian hài hòa với thiên nhiên nhất.
Nhà phố với mặt tiền khá hẹp, Mr Tùng muốn sở hữu một không gian vừa tiện nghi, vừa đảm bảo tính thẩm mỹ nhưng vẫn chú trọng tới không gian sống xanh, hòa hợp với thiên nhiên và bố trí linh động các khoảng không xen kẽ để tạo sự thoải mái cho các thành viên.

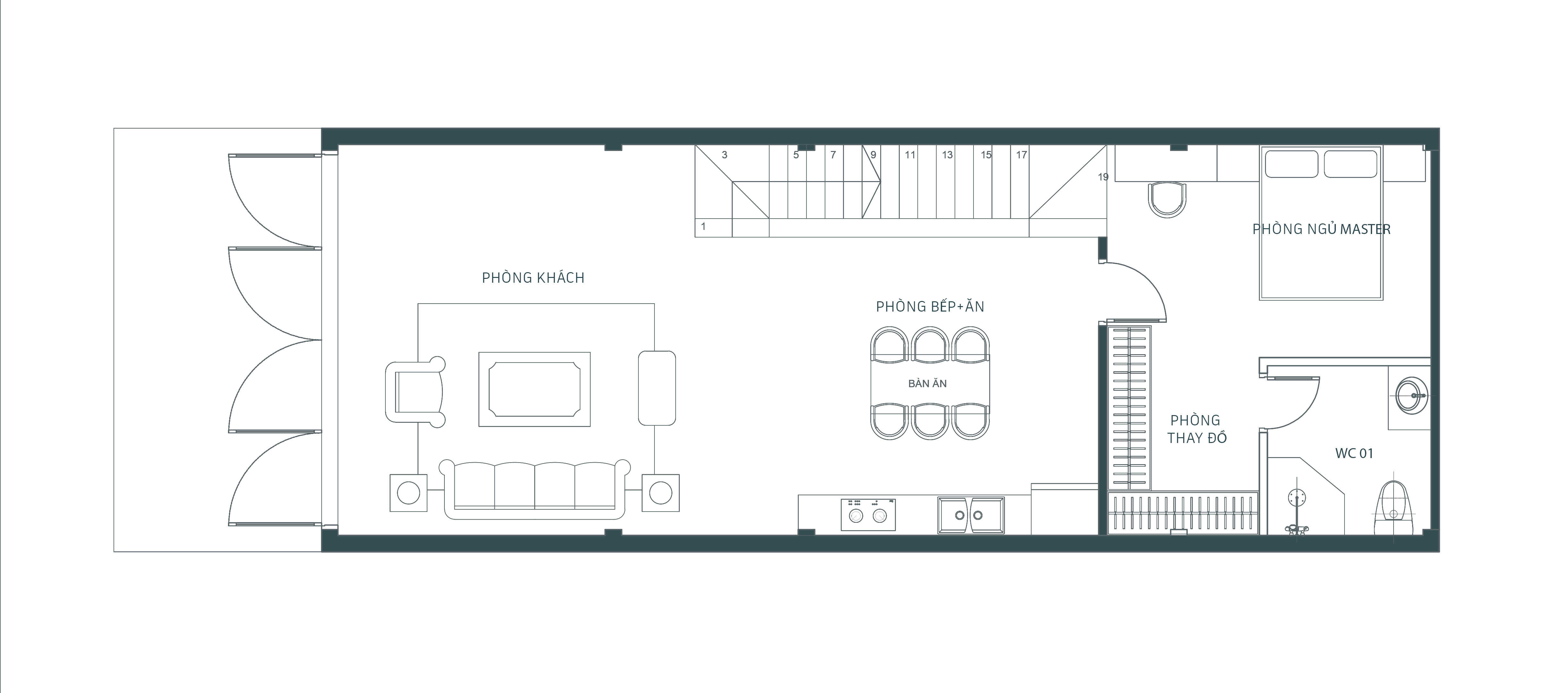
Tầng 1 được bố trí phòng khách và phòng ăn cùng phòng ngủ master. Phòng khách và phòng ăn lớn được thiết kế thông nhau tạo sự thông thoáng.

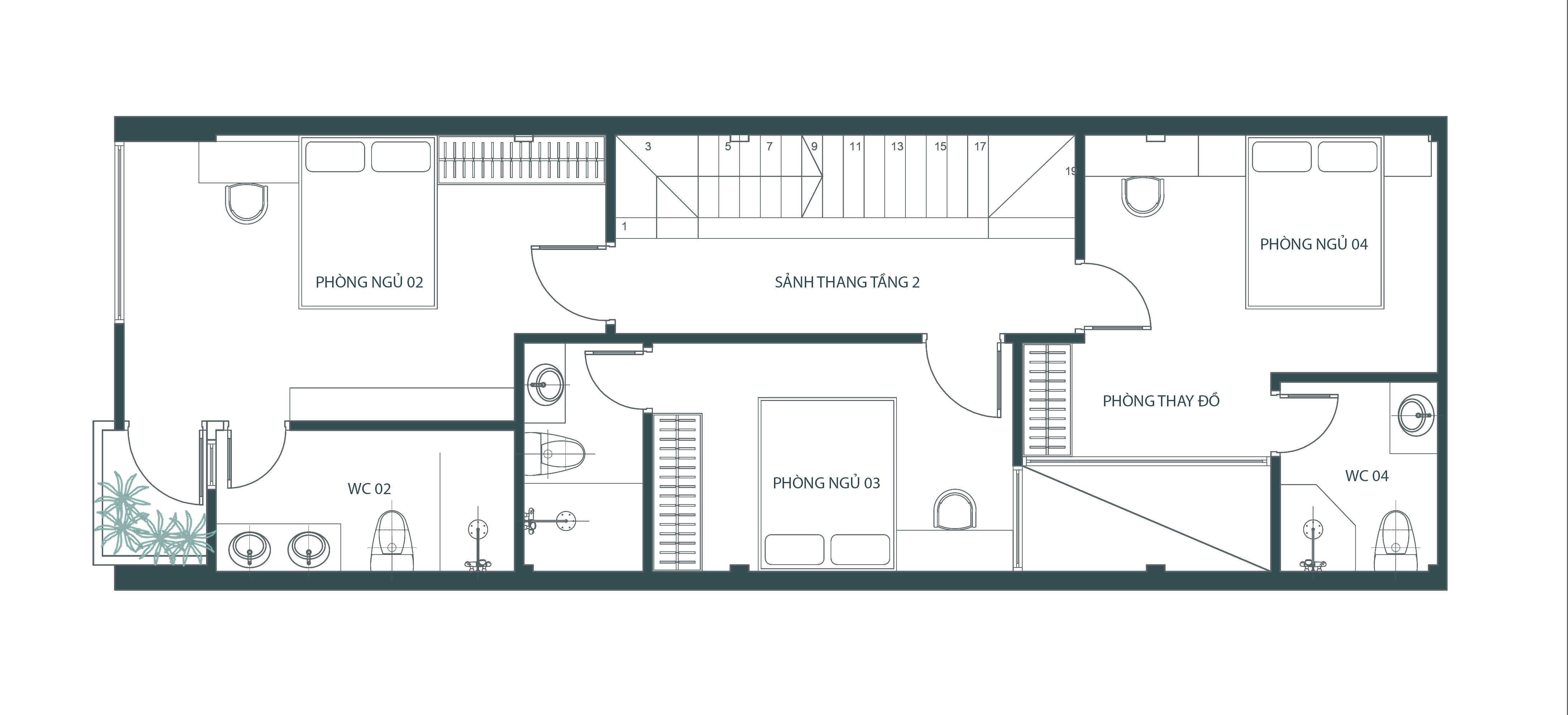
Tầng 2 được bố trí hệ thống các phòng ngủ và sảnh thang rộng rãi.

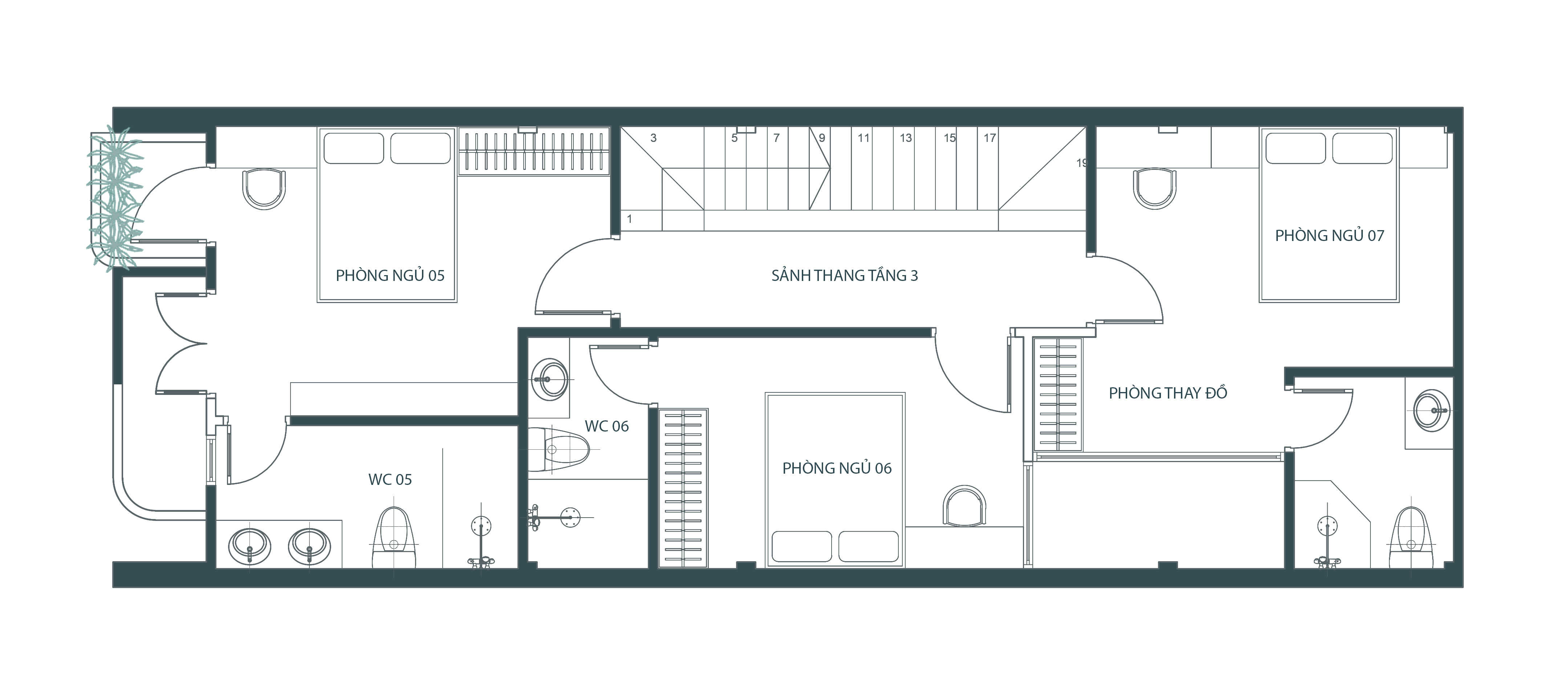
Công trình sở hữu số lượng phòng ngủ khá lớn và được bố trí chủ yếu ở tầng 2 và 3

Khu vực tầng áp mái

A.T House nổi bật với khối kiến trúc hình học độc đáo: Tổng thể công trình là các đường cong kiến trúc tối giản, bất đối xứng nhưng uyển chuyển và mềm mại.

Ban công đua nhẹ ra phía trước với hệ thống cửa oval, kết hợp cùng cây xanh rủ tạo ấn tượng thị giác.

Vật liệu gỗ, kính đan xen trong các khoảng không gian thông minh, hứng sáng tự nhiên và tạo độ thông thoáng hiệu quả.

Tổng thể, A.T House là một khu vườn xanh mướt nhẹ nhàng với các đường nét kiến trúc hài hòa, dễ chịu. A.T House - Không gian sinh thái hiện đại phù hợp với nhà phố có mặt tiền hẹp nhưng vẫn có thể tối ưu để tạo ra không gian sinh hoạt thoải mái cho gia chủ.