Các công trình nhà phố ngày càng có nhiều thiết kế đặc biệt, ấn tượng phù hợp với mặt bằng, tài chính cũng như tính cách riêng của từng gia chủ. Trong bài viết này, Diamond Housing gợi ý cho bạn các mẫu nhà phố 5 phòng ngủ 1 tầng, 2 tầng và 3 tầng ấn tượng nhất 2025.
Mẫu nhà phố 5 phòng ngủ 1 tầng
Mẫu nhà phố 1 tầng 5 phòng ngủ phong cách tân cổ điển
Một công trình phong cách tân cổ được Diamond Housing thực hiện
Pong cách tân cổ điển hiện đang trở thành xu hướng thiết kế được nhiều người đón nhận. Đặc biệt đối với những người có điều kiện kinh tế dư giả. Mẫu nhà 1 tầng 5 phòng ngủ phong cách tân cổ điển sẽ mang đến vẻ đẹp sang trọng, đẳng cấp của phong cách cổ điển, lại vừa đảm bảo công năng của kiến trúc hiện đại, tạo ra không gian sống tiện nghi nhất.
Các đường chỉ phào sẽ tạo điểm nhấn đặc trưng cho các bức tường, cột nhà của phong cách tân cổ. Các họa tiết uốn lượn ở lan can hay hệ thống ánh sáng đèn chùm cũng là điểm không thể thiếu trong mẫu nhà phố đẹp 2025 theo hướng tân cổ điển.
Mẫu nhà phố 1 tầng 5 phòng ngủ phong cách tối giản
Phong cách tối giản hay còn gọi là minimalism là một trong những phong cách thiết kế nhà phố được ưa chuộng nhất hiện nay. Phong cách thiết kế lược bỏ các chi tiết rườm rà và chỉ chú trọng vào sự tiện nghi trong sinh hoạt.

Mẫu nhà phố 1 tầng 5 phòng ngủ phong cách tân cổ điển
Với đặc trưng là sự đơn giản, các gam màu mà phong cách này hướng đến cũng là những gam màu trung tính tối giản. Đến từ việc đơn giản nhất có thể nội thất và các chi tiết thiết kế kiến trúc phức tạp, phong cách tối giản tạo nên một không gian sống rộng rãi, thoáng đãng mà vẫn đảm bảo công năng.

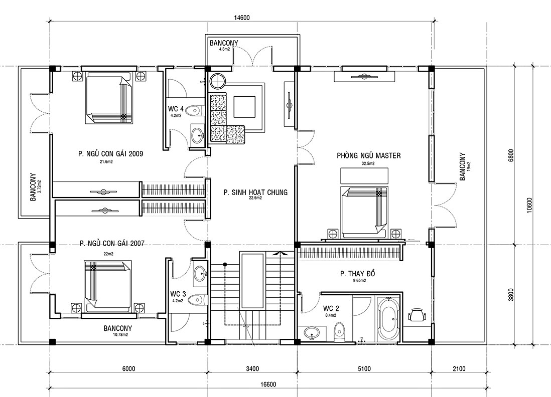
Sắp xếp công năng các phòng của mẫu nhà phố 1 tầng 5 phòng ngủ
Mẫu nhà phố 1 tầng 5 phòng ngủ phong cách mái nhật
Phong cách thiết kế nhà mái Nhật, hay còn gọi là nhà mái lùn, đã trải qua quá trình thích ứng và phát triển phù hợp với văn hóa của Nhật Bản, và đang trở thành một lựa chọn phổ biến cho người dùng trên khắp cả nước và là một trong những mẫu nhà phố đẹp 2025.

Mẫu nhà phố 1 tầng 5 phòng ngủ phong cách mái nhật
Mái nhà trong phong cách thiết kế nhà mái Nhật được thiết kế với độ dốc vừa phải, thường nhỏ hơn 40 độ, để tối ưu hóa khả năng thoát nước và tránh ứ đọng hay ẩm mốc. Có hai loại chính của nhà mái Nhật: mái ngói dốc và mái ngói bằng. Thiết kế này đặc biệt phù hợp với các mẫu nhà phố 1 tầng 5 phòng ngủ dạng nhà vườn, đồng thời rất dễ tìm kiếm nguyên liệu.
Mẫu nhà phố 5 phòng ngủ 2 tầng
Mẫu nhà phố 5 phòng ngủ 2 tầng phong cách hiện đại
Một trong những phong cách được nhiều người lựa chọn nhất hiện nay dành cho nhà phố là phong cách hiện đại. Rất nhiều khách hàng của Diamond Housing đã bày tỏ mong muốn sống trong một không gian tối giản nhưng không được đơn điệu, vẫn đảm bảo công năng và thực sự tiện nghi - chính là phong cách hiện đại.

Mẫu nhà phố 5 phòng ngủ 2 tầng phong cách hiện đại
Với các đường nét thẳng và cong đơn giản kết hợp cùng các gam màu trung tính, phong cách hiện đại tối ưu hóa không gian đồng thời hòa quyện với thiên nhiên. Sự lưu thông không khí trong các mẫu nhà phố 5 phòng ngủ 2 tầng theo phong cách hiện đại cũng rất ấn tượng, tạo sự thoải mái cho gia chủ.

Sắp xếp công năng lầu 1 của nhà phố 5 phòng ngủ 2 tầng phong cách hiện đại
Mẫu nhà phố 5 phòng ngủ 2 tầng phong cách mái Thái
Thiết kế mái Thái, với những nét đặc trưng như mái nghiêng và các chi tiết gỗ tinh xảo, không chỉ tạo nên một vẻ ngoại thất truyền thống độc đáo mà còn mang lại cảm giác ấm cúng và tinh tế cho căn nhà phố 5 phòng ngủ 2 tầng.

Mẫu nhà phố 5 phòng ngủ 2 tầng phong cách mái Thái
Một trong những điểm độc đáo của loại hình kiến trúc này chính là phần mái bằng ngói xếp chồng lên nhau với độ dốc nhất định. Các căn biệt thự 2 tầng mái Thái thường sở hữu đường nét tối giản, sự kết hợp tinh tế giữa các yếu tố gỗ và kính, cũng như sử dụng các nguyên liệu hiện đại để tạo ra một ngôi nhà vừa ấm cúng vừa sang trọng. Không gian mở, nội thất tiện nghi và ánh sáng tự nhiên là điểm mạnh của phong cách này.
Mẫu nhà phố 2 tầng 5 phòng ngủ phong cách mái Nhật
Tương tự như căn nhà phố 5 phòng ngủ 1 tầng phong cách mái Nhật, mẫu nhà phố 5 phòng ngủ 2 tầng phong cách mái Nhật cũng là xu hướng thiết kế được ưa chuộng hiện nay. Phong cách mái Nhật khi sử dụng với 1 căn nhà phố 2 tầng tạo thành một biệt thự mái nhật độc đáo. Căn nhà tập trung vào thông thoáng và thực dụng. Thiết kế ngôi nhà sẽ loại bỏ những chi tiết trang trí cầu kỳ, vừa bề thế nhưng vừa tinh tế, tối ưu hóa mặt bằng nhà phố 5 phòng ngủ.

Mẫu nhà phố 2 tầng 5 phòng ngủ phong cách mái Nhật
Mẫu nhà phố 5 phòng ngủ 3 tầng
Mẫu nhà phố 5 phòng ngủ 3 tầng phong cách hiện đại
Thường với những căn nhà phố 5 phòng ngủ 3 tầng theo phong cách hiện đại, Diamond Housing sẽ bố trí các ban công linh hoạt kết hợp với cây xanh. Điều này không chỉ giúp căn nhà trở nên thông thoáng, kết nối hòa quyện với thiên nhiên mà còn cho công trình sự rộng rãi và thoải mái mà các thiết kế khác khó có được.

Mẫu nhà phố 5 phòng ngủ 3 tầng phong cách hiện đại
5 phòng ngủ được bố trí trên 3 tầng, tối ưu hóa mặt bằng nhà phố 5 phòng ngủ rất phù hợp để phong cách hiện đại phát huy thế mạnh của mình - tối ưu hóa công năng của công trình. Các phòng chức năng được bố trí hợp lý tạo không gian sống tiện nghi, đẳng cấp.

Bản vẽ bố trí công năng mẫu nhà phố 5 phòng ngủ 3 tầng phong cách hiện đại
Mẫu nhà phố 5 phòng ngủ 3 tầng phong cách mái nhật
Nhiều người nghĩ rằng phong cách mái nhật chỉ phù hợp với các mẫu nhà phố 5 phòng ngủ 1 hoặc 2 tầng. Tuy nhiên, với nhà phố 3 tầng, phong cách mái nhật lại có nét riêng độc đáo của nó. Phong cách này làm căn nhà trông như một biệt thự độc lập, đẳng cấp đồng thời thừa hưởng bộ công năng mà phong cách mái nhật truyền thống mang lại.

Mẫu nhà phố 5 phòng ngủ 3 tầng phong cách mái nhật
Mẫu nhà phố 5 phòng ngủ 3 tầng phong cách tối giản
Với số lượng 5 phòng ngủ ở 5 tầng, phong cách tối giản chính là lựa chọn để nhiều gia chủ tối ưu hóa không gian và công năng vận hành của căn nhà. Nội thất cho 1 căn nhà 3 tầng không phải là bài toán đơn giản, khi đó phong cách tối giản vừa mang lại một không gian sống rộng rãi, hiện đại mà vẫn tiện nghi đồng thời tiết kiệm chi phí cho gia chủ.

Lựa chọn phong cách và mẫu nhà phố 5 phòng ngủ nhà cho mình còn dựa vào nhiều yếu tố khác như bài toán mặt bằng, chi phí, sở thích, công năng vận hành,... vì vậy, đội ngũ Diamond Housing hy vọng rằng bài viết này đã giúp gia chủ có thêm nhiều gợi ý trong quá trình xây dựng ngôi nhà mơ ước của mình.