Với nhà phố, cầu thang là một trong những khu vực rất quan trọng, không chỉ vì là nơi liên kết không gian giữa các tầng trong ngôi nhà mà còn thể hiện rất nhiều tính cách, phòng cách sống của gia chủ. Giá trị thẩm mỹ của cầu thang luôn được các kiến trúc sư đặc biệt quan tâm, đồng thời lưu ý thiết kế cầu thang cần tối ưu công năng sử dụng của khu vực này. Cùng Diamond Housing khám phá những nguyên tắc vàng trong thiết kế cầu thang không thể bỏ qua trong bài viết sau đây.

Cầu thang của dự án GL Villa mà Diamond Housing thiết kế và thi công
Lưu ý thiết kế cầu thang về mặt kiến trúc
Thiết kế đảm bảo tính an toàn
Khi thiết kế cầu thang, để đảm bảo an toàn cho người sử dụng, chiều cao của bậc thang cũng như chiều rộng cầu thang phải theo đúng tiêu chuẩn thiết kế kiến trúc. Cụ thể như sau:
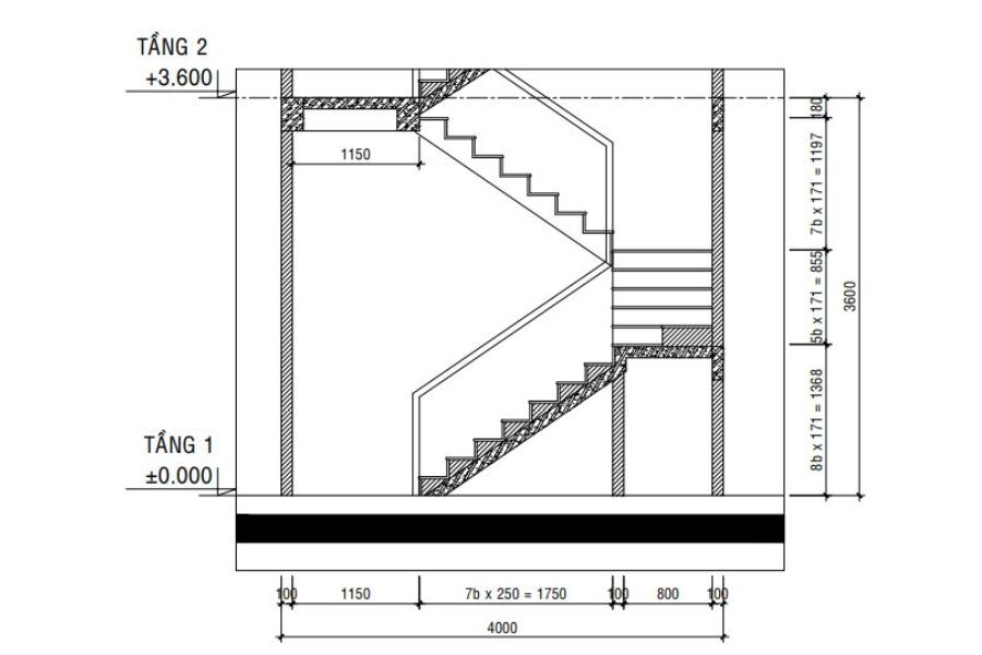
- Theo tiêu chuẩn khi xây dựng nhà ở của người Việt, thì độ rộng trung bình của cầu thang thường được bố trí là từ 75cm đến 120 cm và chiều cao của cả cầu thang là 16cm đến 19cm. Một trong những điều cần tránh khi làm cầu thang là đối với các bậc thang thì độ rộng trung bình của một bậc là 24cm đến 27 cm.
- Đối với những công trình cao cấp hoặc biệt thự thì độ rộng của cầu thang có thể từ 1,5m trở lên. Với kích thước tiêu chuẩn đó, cầu thang sẽ không bị dốc và hẹp, người đi lại sẽ thong thả, không bị mất sức. Chiều cao của lan can được tính từ trung tâm của mặt bậc thang đến mặt trên của tay vịn, kích thước chuẩn khoảng 90cm.

Kích thước an toàn của cầu thang
Thiết kế chiếu nghỉ của cầu thang
- Chiếu nghỉ cầu thang là nơi nghỉ chân tạm thời khi đang đi cầu thang. Trong thiết kế kiến trúc, chiều rộng của chiếu nghỉ không được nhỏ hơn chiều rộng của thân thang, đồng thời phải hợp lý, thuận tiện cho việc đi lại.
- Chiếu nghỉ thường được bố trí ở khoảng giữa của số bậc tức là khoảng bậc thứ 13 đến 15. Khoảng trống này tạo cho người đi lại có cảm giác thoải mái và cũng phù hợp với tiêu chuẩn thiết kế cầu thang. Đối với những cầu thang dành cho nhà có diện tích nhỏ, phần chiếu nghỉ thể tùy chỉnh vị trí cho phù hợp, nhưng lưu ý nên đặt chiếu nghỉ ở những bậc lẻ.

Bản vẽ kỹ thuật cầu thang và chiếu nghỉ
Lưu ý thiết kế cầu thang - Kích thước cầu thang nhà phố
- Với kích thước cầu thang nhà phố, tiết kiệm không gian là một lưu ý rất quan trọng. Để xử lý bài toán không gian cho nhà phố nhỏ hẹp, các kiến trúc sư tại Diamond Housing thường thiết kế cầu thang nhỏ gọn theo dạng góc hoặc xoắn ốc để tiết kiệm tối đa diện tích sàn. Đồng thời, phần không gian dưới gầm cầu thang cũng có thể được tận dụng để kê kệ tủ, giá sách,… giúp tiết kiệm diện tích tối đa không gian sống cho gia chủ.
- Trong kiến trúc nhà ở hiện đại, kiến trúc sư của Diamond Housing thường thiết kế cầu thang kết hợp cùng giếng trời. Điều này giúp cầu thang thêm thông thoáng, rộng rãi và sáng sủa hơn, tối ưu hóa kích thước cầu thang nhà phố… giúp khí lưu thông từ tầng một lên các tầng trên, tạo sự thoải mái cho gia chủ.
Các lưu ý thiết kế cầu thang về mặt kết cấu
- Về kết cấu cầu thang bộ, khi thiết kế thân thang bê tông cốt thép thường có chiều dài lớn hơn chiều rộng nhiều lần, thân thang có dầm làm việc như bản chịu lực theo một phương.
- Để chống mômen, các kiến trúc sư của Diamond Housing thường làm thân thang xoay tự do, phải bẻ cốt thép ngang (cách 1 bẻ 1) lên phía trên bản thân thang. Bản thân thang phải cắm vào tường > 100 mm.
- Dầm thân thang ở ba phía nhưng phía trên và phía dưới chính là dầm chiếu nghỉ.
- Dầm dọc được tính toán theo cường độ và độ cứng, như dầm đơn một nhịp và cũng có tiết diện chữ nhật. Nếu lấy theo cấu tạo thì chọn tiết diện 70 X (180 – 300) (mm) và đặt 1 (ị) 12 ở phía dưới, 1 độ 10 ở phía trên, cốt thép dai một nhánh <ị> 6 cách nhau 150 mm. Dầm dọc thường dặt phía trên bản thân thang (dầm treo).

Một mặt cắt kiến trúc cầu thang bộ
- Thân thang không có dầm đỡ thì đặt cốt thép dày hơn: theo chiều ngang (rộng) đặt 9 – 10 tỉ lệ 6/1 m dài, theo chiều dọc đặt ộ 6 cách nhau a = 150 mm và ở mép ngoài (đối diện với tường) nên tăng cường I – 2 độ 10 – 12.
- Lưu ý thiết kế cầu thang: Với dầm chiếu nghỉ làm việc như dầm đơn một nhịp, hai đầu tỳ lên tường lồng cầu thang. Vì lực cắt ở gối của dầm này lớn và ờ giữa dầm bị cốt thép chịu lực của dầm thân thang neo vào nên ở gối và giữa dầm đặt cốt thép đai (ị) 6 dày hơn (cách nhau 100 -120 mm), còn ở các chỗ khác cùa dầm thì dặt cách nhau 120 – 160 mm.
Tính thẩm mỹ - Lưu ý thiết kế cầu thang quan trọng
Đa số các gia đình Việt thường sử dụng gầm cầu thang làm nhà vệ sinh, nơi chứa đồ, đặt giá sách, kệ tivi,… để tận dụng hết khoảng gian thường được coi là không gian chết này. Tuy nhiên, Diamond Housing thường gợi ý gia chủ biến khoảng không gian này thành một điểm nhất thú vị trong thiết kế, thường là cầu thang kết hợp tiểu cảnh, mang lại sự hòa hợp với thiên nhiên.

Cầu thang của GL Villa được kết hợp với tiểu cảnh tinh tế - Một giải pháp thẩm mỹ từ Diamond Housing
Ngoài cầu thang kết hợp tiểu cảnh, một số gia chủ cũng cam thấy không gian thẩm mỹ hơn rất nhiều khi bố trí những bát hoa hoặc chậu cây nhỏ, những con giống bằng sành, sứ, gỗ,… theo dọc lối lên của mỗi bậc cầu thang, làm tôn thêm nét duyên dáng của những đường cong trên cầu thang.
Tận dụng nhiều nguồn sáng cho cầu thang là lưu ý thiết kế cầu thang quan trọng bởi đây là lối đi lại có kết cấu đặc thù không bằng phẳng, bao gồm nhiều bậc. Do đó, Diamond Housing luôn đảm bảo thiết kế đủ sáng để an toàn cho người di chuyển. Nên có đèn cầu thang để đi lại ban đêm. Tuy cầu thang phải có ánh sáng nhưng nếu sáng quá sẽ bị chói, do đó với từng tường hợp cũng cần các lưu ý để điều tiết ánh sáng khu vực này.

Cầu thang cũng được Diamond Housing kết hợp với nguồn sáng tự nhiên một cách hài hòa
Lưu ý thiết kế cầu thang về mặt phong thủy
Vị trí chân cầu thang
- Chân cầu thang không nên xây đặt ngay tại cửa, như cửa ra vào hoặc cửa phòng ngủ, dễ tạo ra luồng khí độc gây hại cho gia đình như tiêu tán gia sản, mất lộc, gặp các vấn đề sức khỏe ở đầu và cổ.
- Nếu vị trí chân cầu thang kết thúc ngay trước cửa phòng ngủ, những người thường xuyên nghỉ tại phòng này sẽ gặp các vấn đề về tài chính (tiêu hao tài sản, mất mát) và sức khỏe (trầm cảm, suy tuyến giáp).
- Nếu vị trí chân cầu thang kết thúc đối diện ngay trước cửa chính của ngôi nhà, gia chủ có thể phong tỏa nguồn khí độc bằng cách giữ cho phần hành lang và cầu thang luôn sáng sủa, thoáng khí.
- Ngoài ra, gia chủ có thể lắp cửa nhà bằng kính để ngăn không cho vượng khí thoát ra ngoài. Gia chủ cũng có thể treo một quả cầu pha lê giữa cầu thang và cửa trước; cũng như lắp một tấm gương nhỏ ở mặt sau cánh cửa, đối diện với cầu thang để giúp cho vượng khí lên tới tầng trên.

Cầu thang được đặt ở vị trí thoáng kết hợp với giếng trời, mang lại màu sắc phong thủy rất tốt cho gia chủ
Thiết kế cầu thang theo phong thủy: Hình dáng cầu thang
Cầu thang cong theo kiểu mềm mại được cho là tốt nhất vì khi đó nguồn khí tốt trong nhà sẽ được lưu chuyển đều đặn lên các tầng trên. Trong khi đó, cầu thang xoắn ốc, đặc biệt là khi được xây đối diện với cửa trước hoặc ở giữa nhà sẽ khiến cho gia chủ hao tán tài sản và gặp các vấn đề về sức khỏe.
Các vị trí lưu ý thiết kế cầu thang theo phong thủy nên tránh
- Tránh đặt cầu thang thẳng hàng với cửa chính là một lưu ý thiết kế cầu thang rất quan trọng trong phong thủy: Cửa chính được ví như “miệng” - hút rất nhiều khí vào trong nhà. Bố trí cầu thang như vậy khiến tài lộc trong nhà sẽ bị hao tán hết ra ngoài theo lối cầu thang, đây gọi là hiện tượng “tiền vào cửa trước, đi ra cửa sau”.
- Tránh đặt cầu thang đi từ phía sau nhà đi lên: khí trong nhà luôn đi từ ngoài vào và thoái ở phía sau. Nếu cầu thang đặt đi từ phía sau nhà lên sẽ làm cho các tầng trên lần lượt bị suy khí gây suy giảm sức khỏe, tài lộc cho các thành viên trong gia đình.
- Tránh đặt cầu thang ở 3 hướng: hướng Đông (đại diện cho sức khỏe), hướng Tây Nam (đại diện cho tình duyên) và hướng Nam (đại diện cho tài lộc).
- Chân và đỉnh cầu thang không bao giờ đối diện cửa chính.
- Cầu thang không nên bắt đầu hay kết thúc ở trước nhà vệ sinh.
- Tránh làm cầu thang quá dài từ tầng này lên tầng khác. Cầu thang càng dài thì khí càng yếu.

Vị trí cầu thang theo phong thủy được rất nhiều gia chủ quan tâm
- Cần lưu ý không để đà ngang (xà nhà) đè lên cầu thang khi thiết kế cầu thang theo phong thủy
- Tránh làm cầu thang đứt đoạn, tầng 1thì cầu thang đặt ở đầu hành lang, lên tầng 2 – 3 thì cầu thang lại đặt cuối hành lang, hoặc vị trí khác.
Hy vọng rằng qua bài viết này, gia chủ đã có cái nhìn tổng quan về các lưu ý thiết kế cầu thang quan trọng nhất. Không chỉ cần đảm bảo tính thẩm mỹ, cầu thang cần được chú trọng để tối ưu công năng và đây cũng là một trong những tiêu chí khi Diamond Housing thiết kế cho khách hàng của mình.