Bề thế, tráng lệ nhưng không hề phô trương là cách mà L.G Villa khoác lên mình phong cách tân cổ điển với tone trắng kem ấm áp. Diamond Housing thường giúp gia chủ tối ưu hóa bài toán chi phí một cách tốt nhất - bởi đây là phong cách thiết kế đòi hỏi không chỉ tỉ mỉ trong kiến trúc mà còn ở nguồn ngân sách tốt để tái hiện hơi thở cổ điển sang trọng, nguy nga. Công trình được Diamond Housing thiết kế và thi công trọn gói.
1. Nhu cầu của gia chủ và hiện trạng mặt bằng
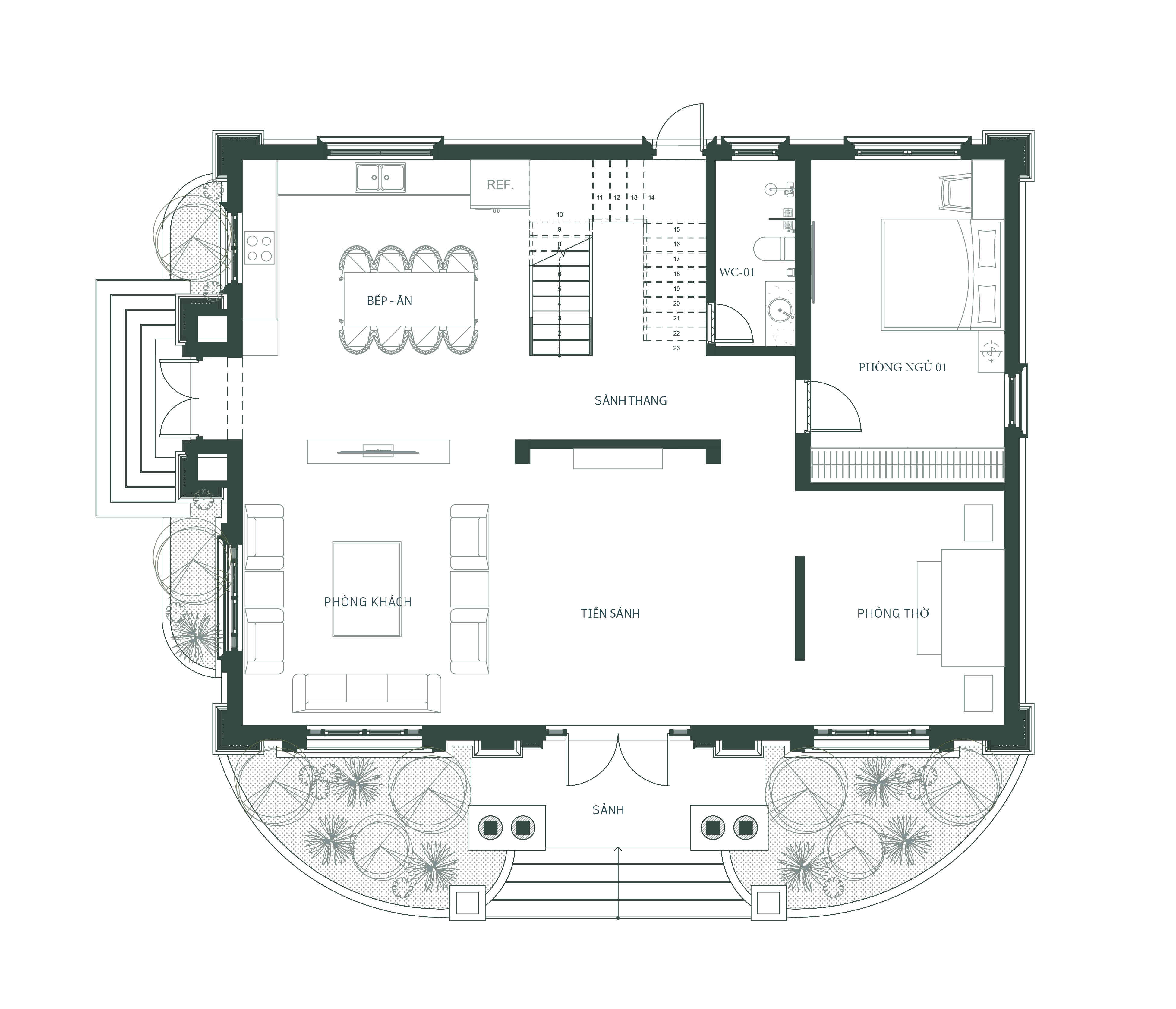
Mr Lương mong muốn một công trình 2 tầng với phong cách tân cổ điển kết hợp mái Nhật. Công trình cần bố trí thông minh các khu vực chức năng bao gồm phòng khách, bếp, 4 phòng ngủ, khu vực thờ và khu vực sinh hoạt chung. Công trình này có tiến độ khá gấp vì ấn định thời gian khởi công. Đội ngũ kiến trúc sư của Diamond Housing đã bám sát theo nhu cầu và sở thích của gia chủ để mang tới giải pháp kiến trúc phù hợp nhất.

Khu vực tầng 1 với sảnh chính, tiền sảnh và sảnh thang liên tiếp nhau không chỉ tạo ra không gian thoáng đãng, thoải mái, lưu thông không khi mà còn là giải pháp phân chia công năng thông minh.

Khu vực sảnh chính thông tầng nhưng vẫn tạo độ thoáng, không bị hút mắt. Tầng 2 được bố trí các phòng ngủ nhỏ.

Mặt bằng thiết kế tầng áp mái
2. Thiết kế kiến trúc

Toàn bộ kiến trúc của căn nhà là một khối thống nhất, bề thế tráng lệ nhưng không quá phô trương, mang đúng tinh thần của phong cách tân cổ.

Khu vực sảnh được đội ngũ kiến trúc sư dành một khoảng không gian rộng thông tầng, kết hợp với sảnh phụ mang lại sự lưu thông, thoáng mát và không gian sinh hoạt thoải mái.

Ban công và các chi tiết kiến trúc cổ điển đặc trưng được sử dụng mang tới cho mặt tiền của villa vẻ đẹp thẩm mỹ ấn tượng

Hệ thống cửa kính mái vòm đan xen các đường thẳng cân bằng hơi thở cổ điển và hiện đại

Kiến trúc mái Nhật được kết hợp một cách độc đáo, mang lại vẻ hiện đại cho công trình.

Cây xanh không chỉ giúp phong cách tân cổ trở nên gần gũi hơn mà còn tạo sự hòa hợp với thiên nhiên, trong và ngoài căn nhà.

Không gian xung quanh rộng rãi, thoải mái của công trình

Các đường nét kiến trúc cổ điển đều được hiện đại hóa để phù hợp với tổng thể căn nhà.

Biệt thự mái Nhật tân cổ độc đáo L.G Villa là chuẩn mực cho phong cách thiết kế tân cổ điển, đồng thời cân bằng thông minh với công năng sử dụng cho gia đình gia chủ.