V House là một công trình Diamond Housing thiết kế và thi công trọn gói. Sở hữu mặt bằng với 2 mặt tiền lô góc đắc địa, Diamond Housing đã tối ưu hóa không gian này và đặt công năng sử dụng của gia chủ lên đầu tiên, trao tay một công trình tiện nghi nhất.
V House sở hữu mặt bằng khá đắc địa với 2 mặt tiền lô góc. Tuy nhiên, gia chủ sử dụng công trình này không để kinh doanh mà cho gia đình riêng. Vì vậy, một trong những yêu cầu của gia chủ là tạo ra không gian riêng bên trong, vừa kết nối được với thiên nhiên nhưng không bị ảnh hưởng bởi tiếng ồn và khói bụi đường phố.

Cùng với một khoảng sân nhỏ, mặt bằng tầng 1 được bố trí một sảnh thang cùng phòng khách và phòng ngủ chờ - cách thiết kế khá quen thuộc với các công trình nhà ở.

Tuy nhiên, khi kết hợp với sắp xếp công năng của tầng 2, kiến trúc trở nên thoáng và mở hơn rất nhiều. Đan xen kết hợp với các khoảng ban công, căn nhà không hề có vẻ bức bí mà ngược lại, tạo cảm giác thoải mái khi sinh hoạt cho gia chủ.

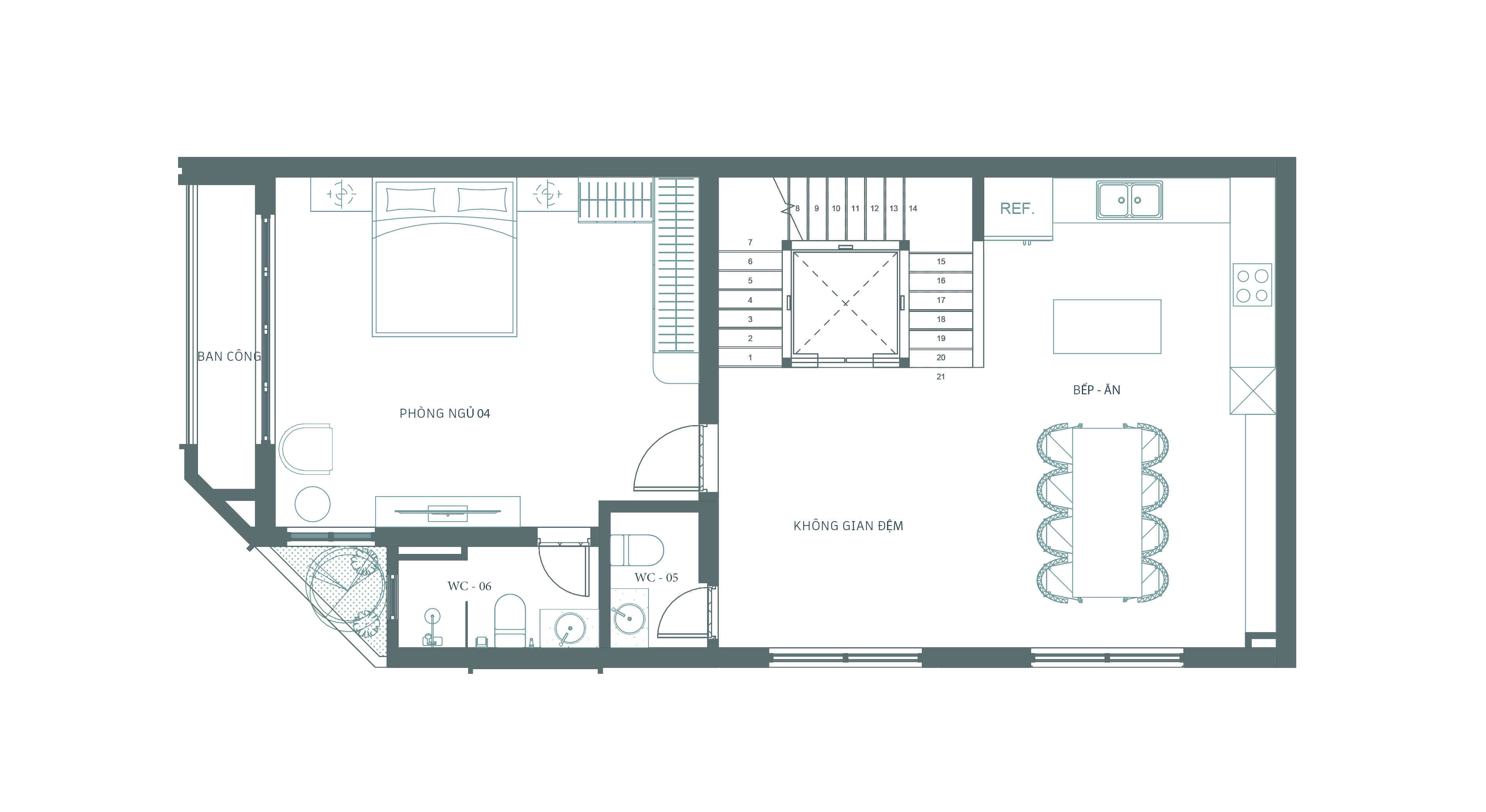
Khu vực tầng 3 với công trình phụ và phòng ngủ số 4 được sắp xếp đan xen tiếp tục với các khoảng ban công nhỏ.

Mặt bằng thiết kế kỹ thuật tầng áp mái

Sở hữu mặt tiền đắc địa, V House là công trình gây ấn tượng về mặt thẩm mỹ ngay cái nhìn đầu tiên.

Các lớp kiến trúc đối xứng của công trình không tạo ra sự nhàm chán mà ngược lại khiến cả căn nhà có diện mạo sang trọng, đẳng cấp.

Với nhu cầu liên kết và hòa hợp với thiên nhiên của gia chủ, Diamond Housing đã bố trí nhiều cây xanh đặt trong nhiều khoảng ban công xen kẽ.

Các khoảng ban công này chính là giải pháp vừa tạo sự lưu thông không khí, vừa tạo không gian mở cho căn nhà. Cây xanh ngăn lại khói bụi xâm nhập và cũng tạo không gian nghỉ dưỡng cho gia chủ.

Lối kiến trúc hiện đại trở thành hơi thở của cả công trình.

Diện tích xây dựng chỉ 120m2/sàn nhưng bằng cách bố trí công năng thông minh, Diamond Housing vẫn tạo ra không gian đầy đủ công năng sử dụng cho đại gia đình.

Cùng với sảnh thang thông tầng ở giữa căn nhà, các khoảng ban công đan xen giúp công trình đón được ánh sáng tự nhiên, thông gió của các phòng và đồng thời cũng tạo sự tiện nghi cho gia chủ.

Với các giải pháp thiết kế kiến trúc hợp lý, V House không chỉ mang lại sự tiện nghi khi sinh hoạt cho gia chủ mà còn là điển hình cho giải pháp thiết kế của các công trình đa mặt tiền sử dụng làm không gian nhà ở.