Dự án GL Villa - Mr Gấm là dự án Diamond Housing thiết kế - thi công trọn gói. Với diện tích xây dựng 400m2, gặp vấn đề chênh cote mặt bằng khá lớn, cũng như dựa trên mong muốn của gia chủ về một không gian mở, kết nối bên trong và bên ngoài căn nhà, Diamond Housing đã đưa ra hàng loạt các giải pháp thiết kế kiến trúc để dự án vừa thẩm mỹ, vừa đảm bảo công năng hoàn hảo.
Sở hữu mặt bằng khá đắc địa với 2 mặt tiền, thoáng 4 phía xung quanh, GL Villa có nhiều tiềm năng để trở thành một không gian kết nối ấn tượng. Tuy nhiên, mặt bằng của khu đất lại có nhiều vấn đề cần giải quyết:
- Khu đất có địa hình dốc
- Chênh cote trước - sau lớn lên đến 1.8m
Nhu cầu của Mr Gấm là một không gian mở, có sự liên kết bên trong và bên ngoài căn nhà. Bên cạnh đó, gia chủ cũng mong muốn một không gian xanh, hòa hợp với thiên nhiên.
Diamond Housing đã triển khai hàng loạt các giải pháp thiết kế kiến trúc để mang tới cho gia chủ công trình hoàn hảo nhất.

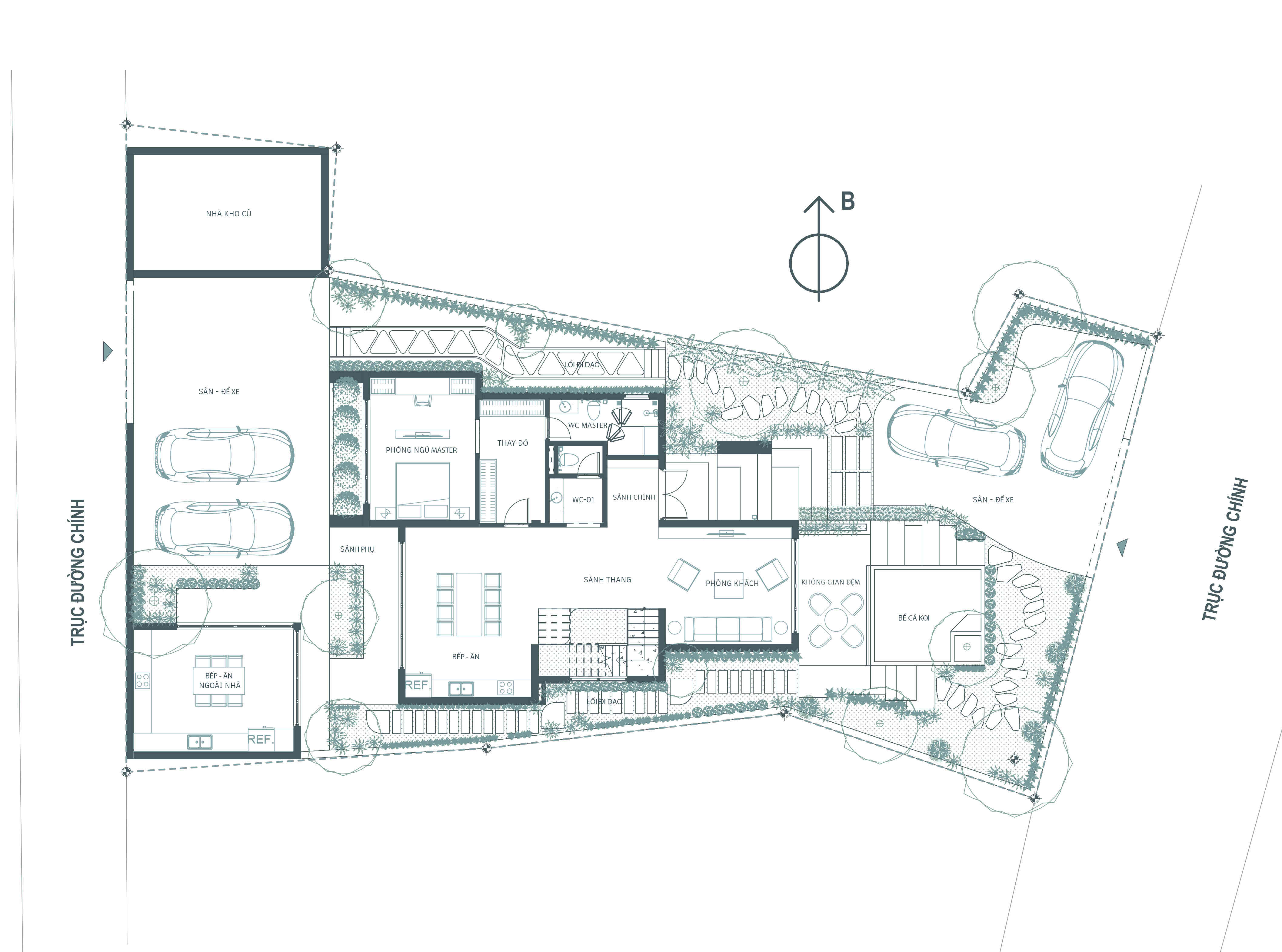
Mặt bằng định vị cho thấy khu đất có độ dốc lớn và chênh cote trước - sau khá nhiều. Diamond Housing đã triển khai hệ thống cầu thang tam cấp và cầu thang ngay giữa căn nhà để giải quyết vấn đề này.

Tầng 1 được bố trí phòng ngủ master, phòng khách và bếp ăn. 2 sảnh thang lớn được bố trí giữa nhà và thông với nhau tạo không gian lưu thông rất thoải mái.

Tầng 2 được bố trí 2 phòng ngủ, phòng sinh hoạt chung và không gian thờ cúng của gia đình.

Bản vẽ kĩ thuật tầng áp mái của villa.

Thiết kế của toàn bộ căn villa là một không gian mở, hòa hợp hài hòa với thiên nhiên đồng thời mang vẻ hiện đại, tiện nghi, thẩm mỹ.

Một tiểu cảnh nhỏ được bố trí ngay phía trước villa không chỉ tạo cảnh quan rất thẩm mỹ mà còn góp phần tạo không gian nghỉ ngơi, thư giãn cho gia chủ.

Các chi tiết bằng kính không chỉ mang lại vẻ thẩm mỹ mà còn góp phần tạo sự liên kết giữa bên trong và ngoài của căn villa
Một trong những điểm đặc biệt của GL Villa chính là hệ thống cầu thang. Hệ thống cầu thang này không chỉ mang lại vẻ thẩm mỹ khác biệt cho villa mà còn chính là giải pháp thông minh của Diamond Housing cho vấn đề mặt bằng dốc và chênh cote của mặt bằng.
Hệ thống cầu thang của GL villa bao gồm cầu thang tam cấp ở bên ngoài và hệ thống cầu thang ở ngay giữa căn nhà.

Hệ bậc tam cấp vào nhà thiết kế nhiều bậc dạng bậc bay, không trùng lặp, tạo điểm nhấn mạnh mẽ và cũng giải quyết vấn đề chênh cote của mặt bằng.

Không thể phủ nhận hệ thống cầu thang tạo cho villa vẻ thẩm mỹ cực kì khác biệt.

Hệ cầu thang tam cấp này được bố trí ngay cạnh tiểu cạnh, cũng là một thủ pháp thiết kế thông minh, tạo ra không gian nghỉ dưỡng thoải mái cho gia chủ.

Cầu thang bên trong nhà cũng được tối ưu thiết kế. Sử dụng thiết kế chữ L phổ biến, tuy nhiên cầu thang của GL. Villa mà Diamond Housing thiết kế sử dụng phong cách khuyết cổ bậc, không chỉ ấn tượng về mặt thị giác mà còn khiến không gian bên dưới thoáng đãng, đủ sáng tự nhiên.

Tiểu cảnh được đội ngũ kiến trúc sư khéo léo kết hợp với cầu thang. Bên cạnh đó, cửa sổ kính được đặt hợp lý bên cạnh cung cấp nguồn sáng dồi dào, tạo ra không gian giao thoa với thiên nhiên dễ chịu cho gia chủ.
Vật liệu cũng được Diamond Housing cân nhắc kỹ lưỡng. Cầu thang sử dụng kính đen không chỉ vì mục đích thẩm mỹ mà còn để điều tiết bớt ánh sáng, tránh gây chói nhưng vẫn có cảm giác thông thoáng và sang trọng. Bậc cầu thang bằng gỗ kết nối hài hòa với tiểu cảnh bên dưới, vừa ấm cúng, vừa hài hòa.

Sự kết nối bên trong và ngoài căn nhà không chỉ dừng lại ở các khoảng mở của kiến trúc mà còn ở việc bố trí không gian xanh thông minh và hợp lý.

Tính đồng nhất từ kiến trúc, nội thất và sân vườn được Diamond Housing chú trọng. Căn nhà nhận nhiều ánh sáng tự nhiên, lưu thông gió tốt.

Tổng thể GL Villa như một bản giao hưởng rộng mở của kiến trúc và thiên nhiên, thực sự trở thành không gian sống thoải mái, dịu dàng - Đúng với mong đợi của gia chủ về căn nhà trong mơ của mình.