Dự án Minh Vy Villa Mê Linh là một dự án mà đội ngũ kiến trúc sư của Diamond Housing rất ấn tượng, bởi khách hàng muốn đi theo phong cách tân cổ sang trọng và muốn giữ lại nét đẹp thờ cúng của gia đình mình. Toàn bộ căn villa là bức tranh tài chính được cân bằng hoàn hảo, vừa mang đầy đủ diện mạo của phong cách tân cổ, vừa phát huy tối đa công năng và vẫn đáp ứng nhu cầu tài cho gia chủ.
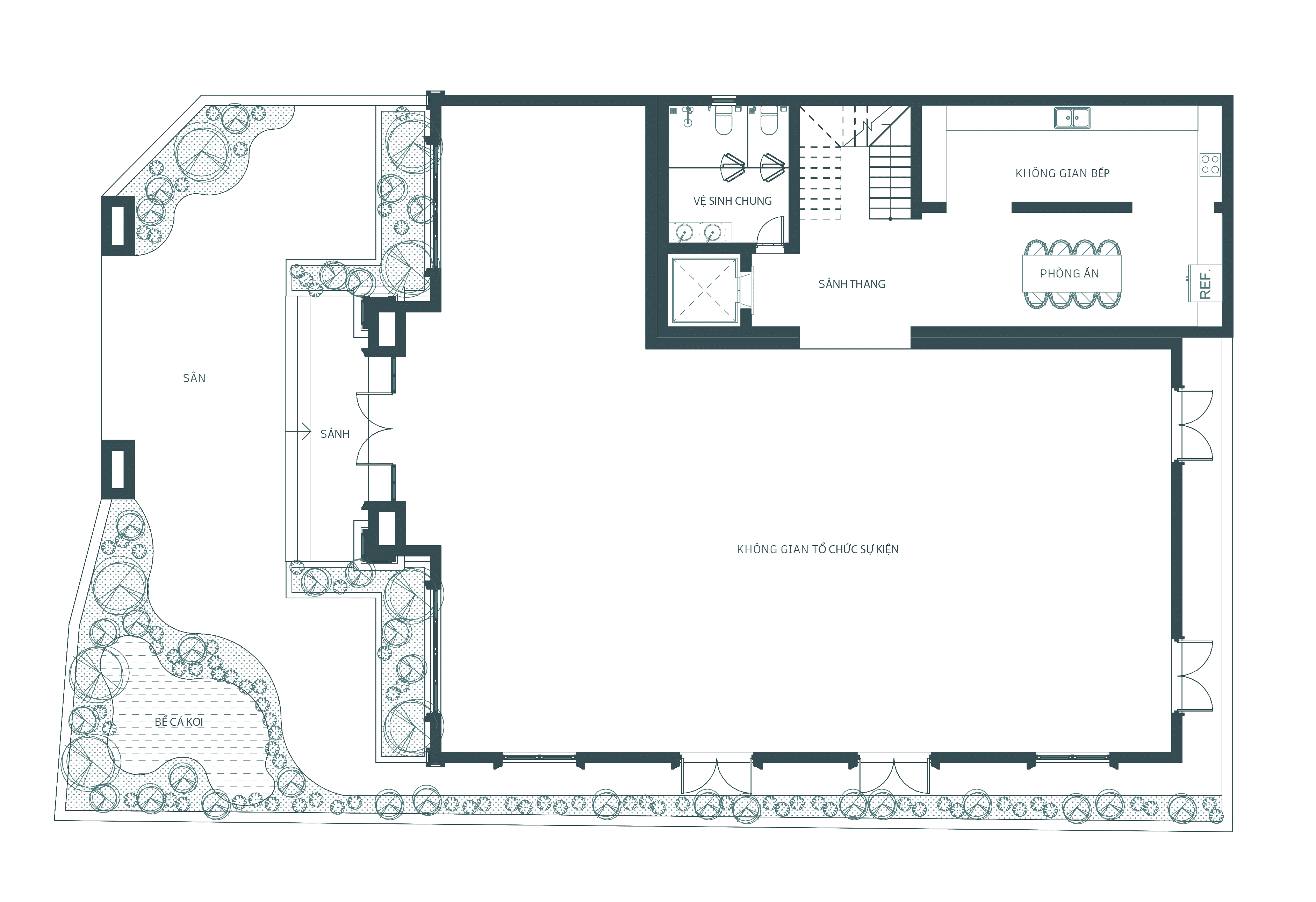
Ms Minh mong muốn công trình gồm 2 tầng 1 tum, phong cách tân cổ điển. Trong đó, đặc biệt giữ thiết kế nhà thợ họ trên mái (tầng tum ). Đây là một yêu cầu cần đội ngũ kiến trúc sư tính toán chi tiết về kết cấu. Đồng thời, thiết kế tầng 1 cần có không gian liên thông rộng, diện tích lớn để tổ chức tiệc, sự kiện.

Các công trình phong cách tân cổ thường sở hữu mặt bằng lớn. Dựa theo nhu cầu của gia chủ, Diamond Housing thiết kế tầng 1 với không gian rộng để tổ chức các sự kiện của gia chủ. Bên cạnh đó, phòng ăn cũng được bố trí ngay bên cạnh để thuận tiện cho các dịp sự kiện.

Toàn bộ 5 phòng ngủ của gia đình được bố trí tại tầng 2 với khoảng thông tầng rộng rãi.

Điểm ấn tượng nhất của Minh Vy Villa nằm ở tầng tum với khu vực nhà thờ họ. Khu vực này yêu cầu rất cao về các tính toán về kết cấu của công trình.

Mặt bằng kĩ thuật tầng mái.

Minh Vy Villa đi theo phong cách tân cổ sang trọng. Bề thế và lộng lẫy, toàn bộ công trình giữ lại hơi thở cổ điển trong từng chi tiết.

Khu vực nhà thờ họ nổi bật trên tầng tum của cả công trình.

Không chỉ cần tính toán kỹ về mặt kết cấu, thiết kế của khu vực nhà thờ họ cũng cần hòa quyện và phù hợp với tổng thể tân cổ của toàn bộ villa.

Các khoảng không gian rộng được sắp xếp đan xen xung quanh villa để vẫn tạo ra không gian thoải mái cho gia chủ.

Hệ thống cửa kính mái vòm đầy nét hoài cổ châu Âu được sử dụng, đồng thời cũng tạo độ mở cho không gian tổ chức sự kiện ở tầng 1.

Các đường nét kiến trúc tân cổ được tối giản để không quá khoa trương nhưng vẫn giữ được hơi thở sang trọng đặc trưng.

Kiến trúc xanh đặc trưng không thể thiếu trong các thiết kế của Diamond Housing được lựa chọn kỹ lưỡng để phù hợp với căn villa.

Căn villa nhận trọn vẹn ánh sáng tự nhiên cùng khu vực sảnh thang rộng rãi tạo độ thông thoáng.

Tone màu trắng kem trung tính nhưng vào mỗi khoảng thời gian trong ngày, nét kiến trúc tân cổ điển lại mang tới một hiệu ứng màu sắc khác nhau.

Cửa kính mái vòm kết hợp với khu vực sảnh đơn giản hơn

Khu vực tiểu cảnh là một bể cá koi - phù hợp với một công trình tân cổ.

Bể cá vừa đủ tạo ra sự hòa hợp với thiên nhiên cho công trình

Với các công trình phong cách tân cổ, kết hợp ánh sáng tự nhiên và nhân tạo là vô cùng quan trọng. Ánh sáng nhân tạo không chỉ mang lại vẻ thẩm mỹ khác biệt mà còn tạo chiều sâu cho công trình.

Minh Vy Villa không chỉ mang thiết kế đặc biệt mà còn có công năng được tối ưu hoàn hảo với nhu cầu của gia chủ. Bức tranh tài chính được cân đối để trao tao Ms Minh một công trình ưng ý nhất.