Nằm ở vị trí đắc địa 2 mặt tiền với tổng diện tích xây dựng 320m2, T.L Villa sở hữu nhiều yếu tố để trở thành một dự án đầy tiềm năng. Đội ngũ kiến trúc sư của Diamond Housing không dừng lại ở thiết kế ấn tượng mà còn khiến T.L Villa trở thành một trong những công trình nhà phố đáng sống nhất.
Sở hữu vị trí đắc địa với 2 mặt tiền, Mr Thắng mong muốn một công trình với đầy đủ các phòng chức năng được sắp xếp thông minh để tối ưu hóa công năng. Đồng thời, dù lựa chọn phong cách hiện đại - một trong những phong cách rất phổ biến với nhà phố, tuy nhiên gia chủ mong muốn sự khác biệt, ấn tượng và sang trọng trong thiết kế của mình.

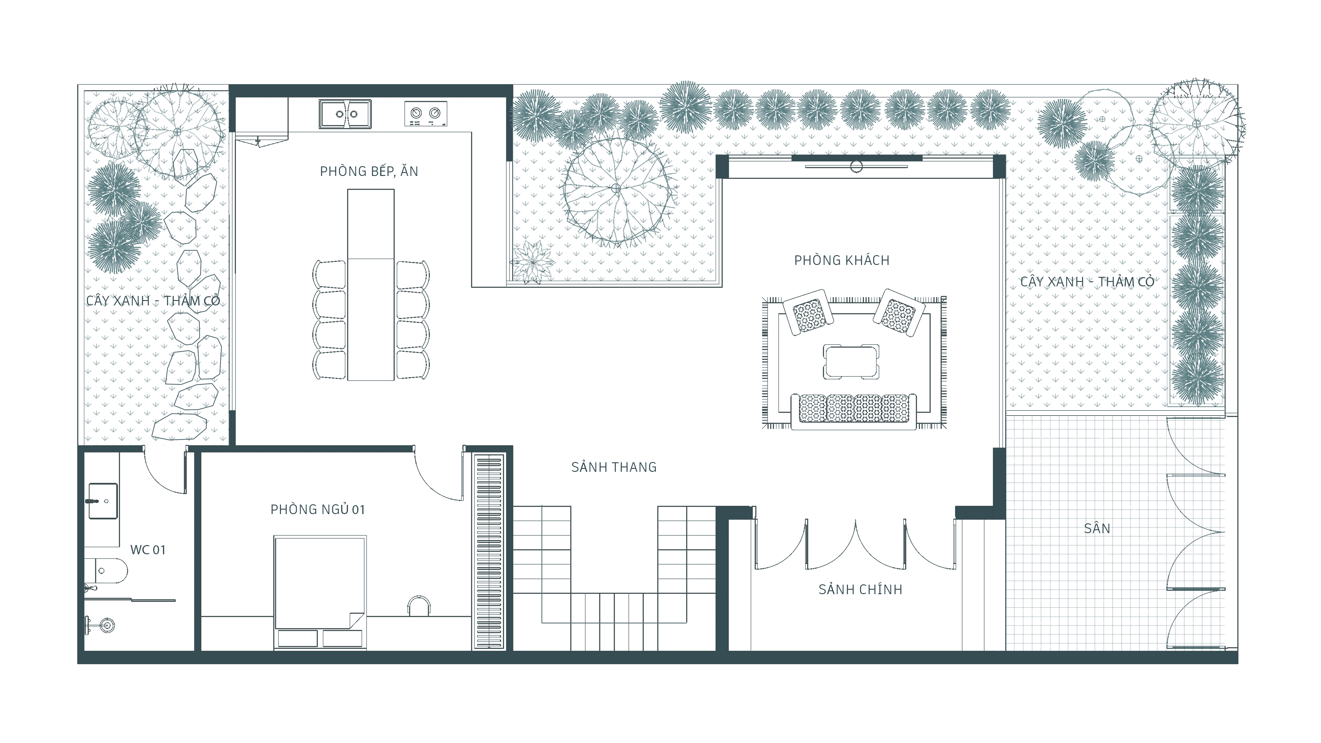
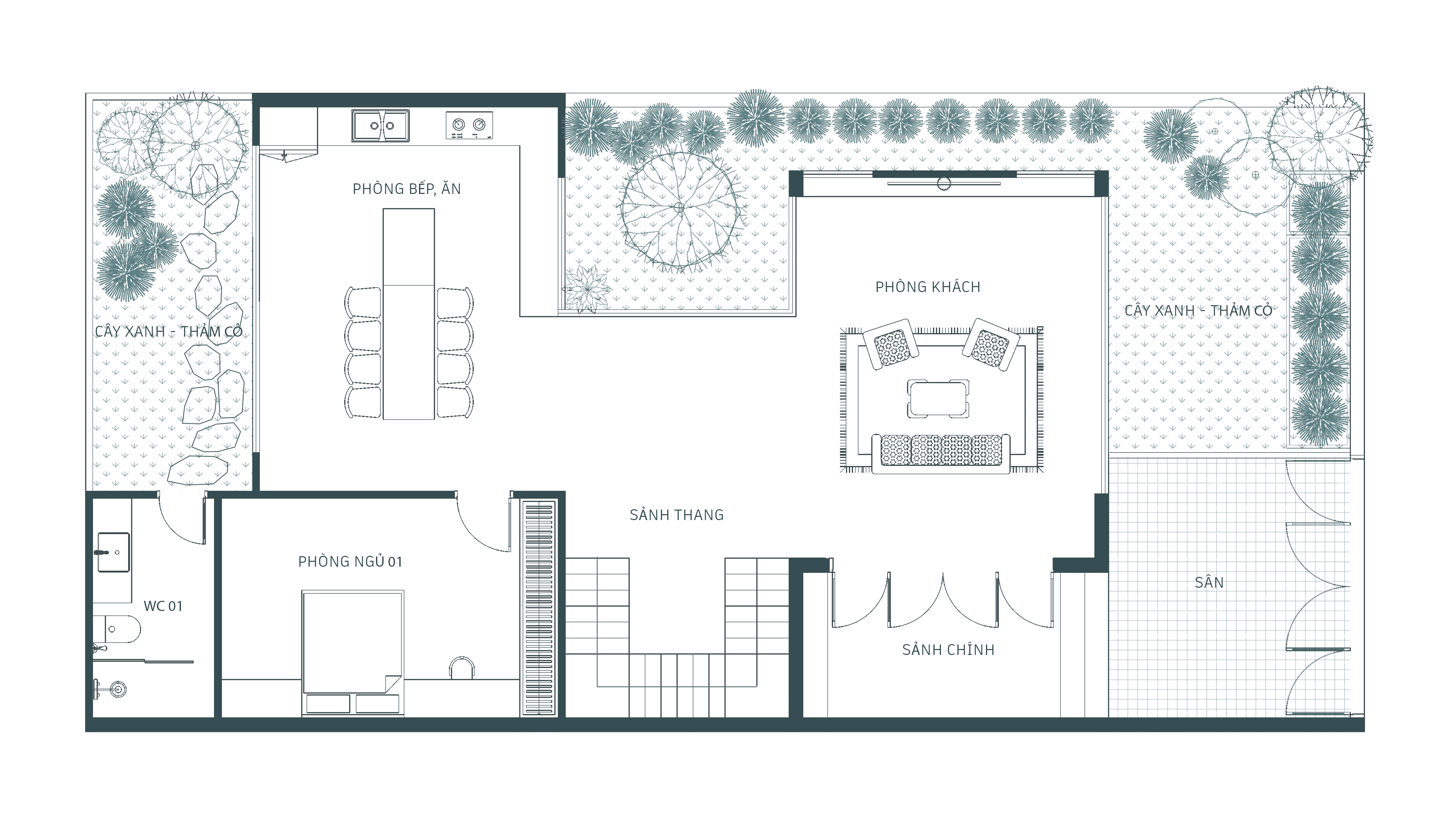
Toàn bộ kiến trúc của căn villa được xây dựng theo khung chữ U với một khu vực thông tầng ở giữa. Cách thiết kế này tạo thành hai khối kiến trúc thông nhau rõ ràng, tạo ra sự bề thế cho công trình.

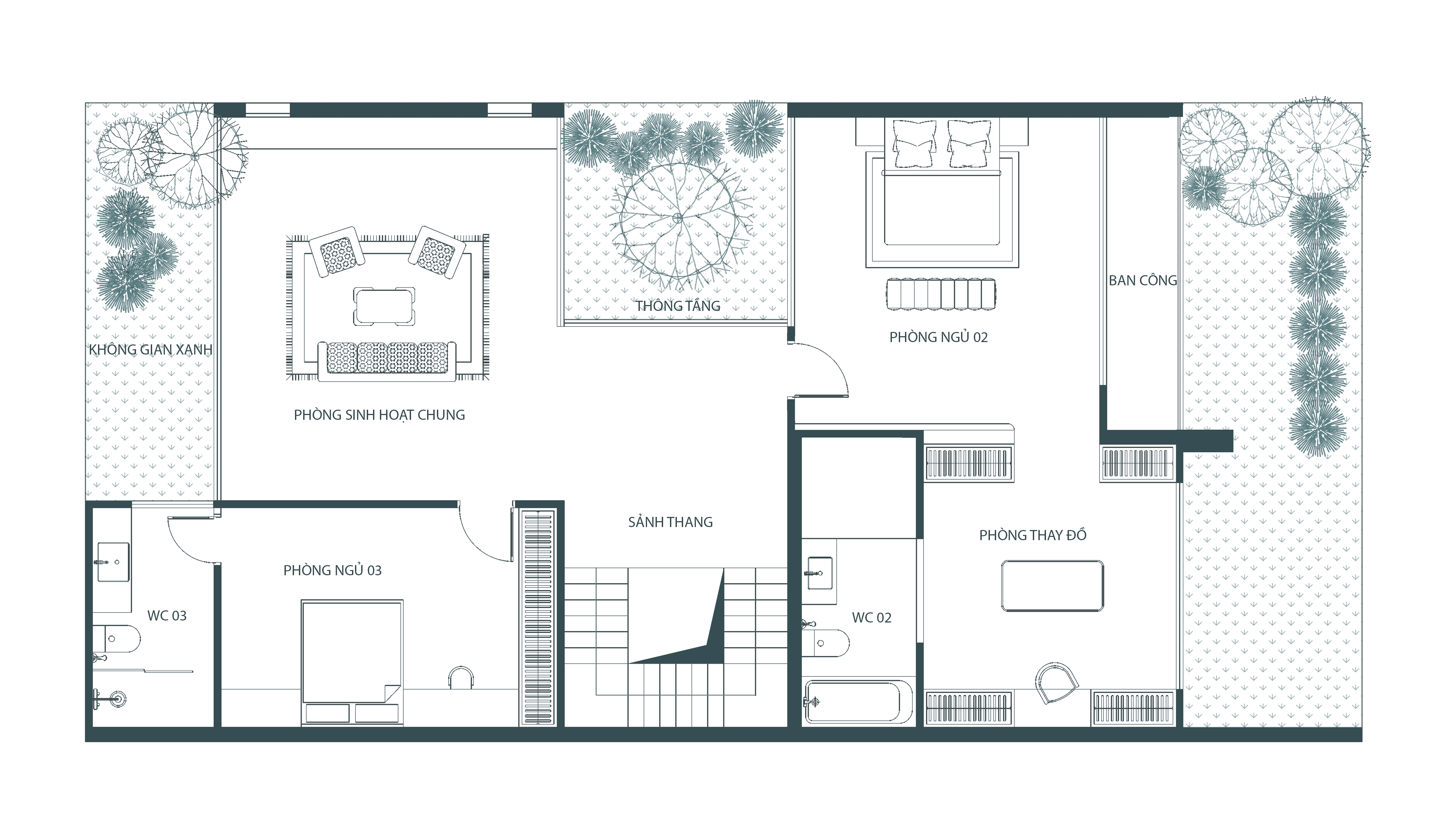
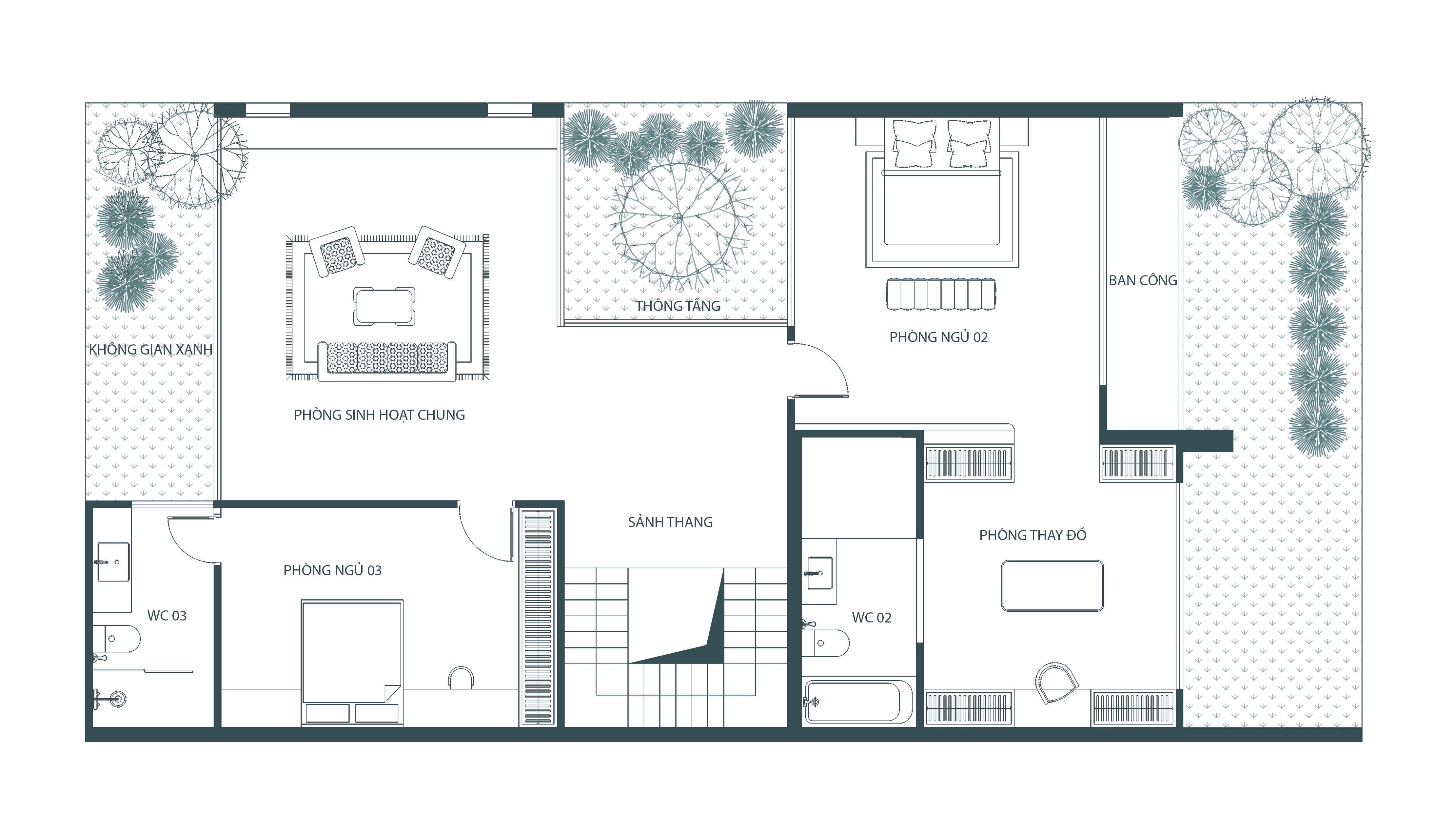
Các phòng ngủ được bố trí trên tầng 2 cùng với khoảng ban công thoáng mát

Tầng 3 là khu vực giải trí, phòng gym, BBQ và phòng thờ của gia chủ.

Kiến trúc của T.L Villa được thổi hồn bởi phong cách thiết kế hiện đại với các đường nét tinh giản bất đối xứng, tạo thành các khối nhà lồng ghép đầy nghệ thuật - Thể hiện phẩm chất tinh hoa, địa vị ưu tú của gia chủ.

Hai khối kiến trúc lớn thông nhau tạo ra sự bề thế ấn tượng cho công trình

Hơi thở hiện đại của T.L Villa thể hiện rất rõ qua các đường nét kiến trúc đan xen nhau.

Một mặt tiền của villa được kết hợp với tiểu cảnh trước nhà cùng hệ thống cửa kính tạo sự kết nối

Mặt tiền còn lại là hai khối kiến trúc lớn đối xứng nhau

Các khoảng ban công được bố trí đan xen nhau tạo sự thông thoáng cho cả căn nhà

Các khu vực cây xanh được bố trí khắp căn nhà

Các khu vực cây xanh này được tính toán kỹ lưỡng để toát lên vẻ sang trọng, phù hợp với thiết kế của toàn bộ villa nhưng vẫn đảm bảo sự hòa hợp với thiên nhiên.

Ánh sáng nhân tạo cũng được sử dụng cho các khu vực cây xanh trong villa

Khu vực hồ nước hình chữ nhật hẹp tạo ấn tượng thị giác mạnh mẽ và cực kì sang trọng

Ánh sáng tự nhiên ngập tràn trong không gian xanh mướt

Cửa ra vào được thiết kế lùi vào trong, tạo ra một khoảng hành lang nhỏ cực kì sang trọng và hiện đại.

Toàn bộ căn villa là sự kết hợp hoàn hảo của kiến trúc quốc tế, không gian xanh và sự sắp xếp thông minh các phòng chức năng.

T.L Villa vượt xa ngoài quy chuẩn của một công trình mang thiết kế hiện đại. Các khối kiến trúc ấn tượng mang hơi thở quốc tế đã đem tới cho công trình vẻ thẩm mỹ đặc biệt, khẳng định phẩm chất của gia chủ cũng như trở thành không gian sinh hoạt đầy tiện nghi.