HG House được Diamond Housing thiết kế lấy cảm hứng từ những ngôi nhà Machiya truyền thống của Nhật Bản, cùng phong cách mái Nhật đặc trưng. Hoàn thiện bởi lớp kiến trúc hiện đại, Machiya House trở thành một không gian vừa tiện nghi, vừa độc đáo. Công trình cải tạo toàn diện này được gia chủ rất ưng ý và thay đổi hoàn toàn diện mạo của công trình cũ.
Với mong muốn giữ lại phần khung vốn có của dự án và tiến hành cải tạo, gia chủ muốn tối ưu hóa bài toán chi phí nhưng vẫn tạo ra được không gian sống tiện nghi, thẩm mỹ cho gia đình. Phong cách mái Nhật được lựa chọn để vừa có tinh thần hiện đại, vừa gần gũi cho toàn bộ các thành viên.

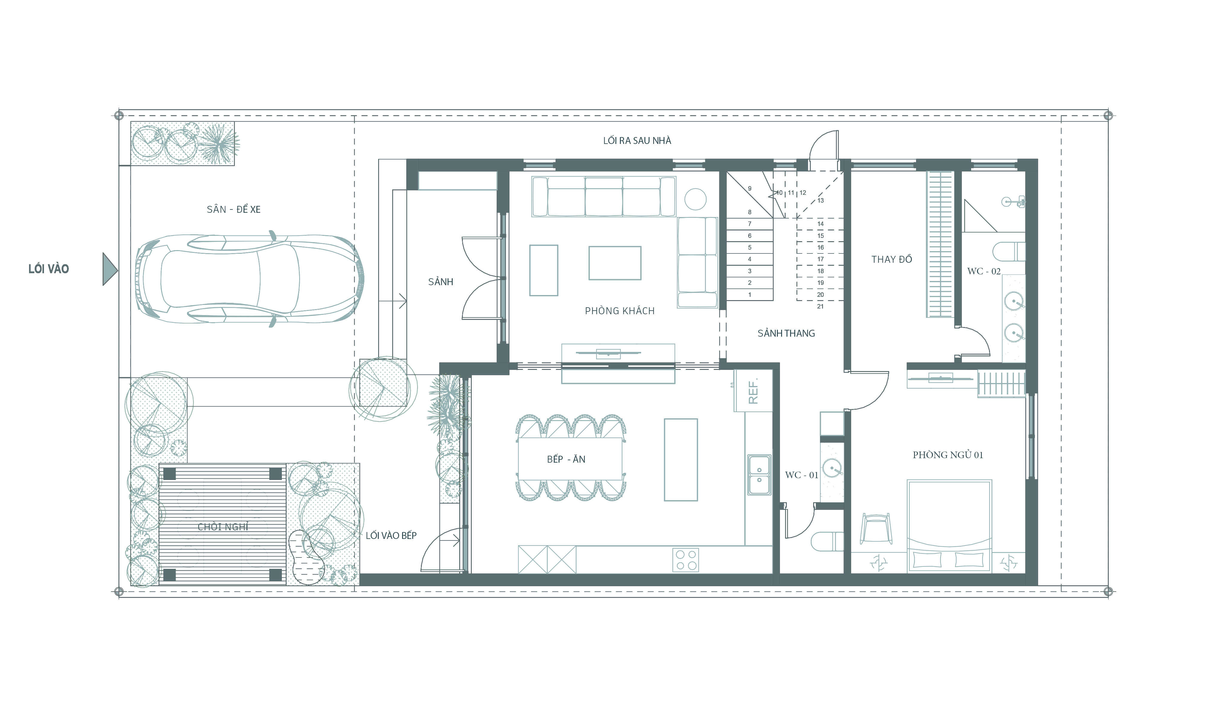
Tầng 1 được bố trí sảnh chính thông thoáng, phòng ngủ lớn và phòng khách. Điểm nhấn đặc biệt là khu vực chòi nghỉ mang đậm phong cách Nhật.

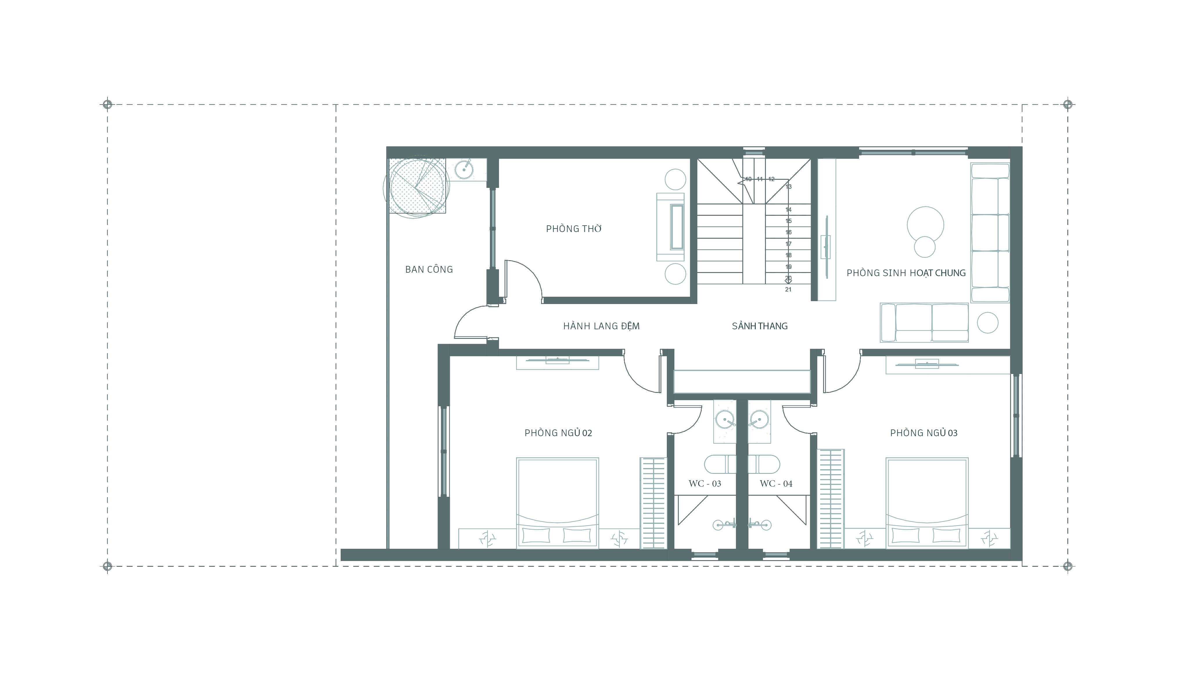
Tầng 2 được bố trí 2 phòng ngủ cùng sảnh thang thông tầng - tạo sự lưu thông và thông thoáng cho toàn bộ căn nhà. Công trình cũng được lồng ghép khoảng không gian ban công linh động đón sáng tự nhiên hiệu quả.

Khu vực tầng áp mái.
Toàn bộ cảnh quan biệt thự mái Nhật độc đáo được cải tạo lại từ khung công trình cũ.

Kiến trúc hiện đại được lựa chọn để công trình không chỉ đáp ứng về mặt thẩm mỹ mà còn tối ưu hóa công năng hiệu quả.

Khu vực chòi nghỉ ở ngay khuôn viên tầng 1 mang đậm nét kiến trúc Nhật Bản, cũng là điểm nhấn thiết kế độc đáo của công trình.

Bên cạnh đó, khuôn viên cũng được bố trí rất nhiều cây xanh, tạo sự kết nối với thiên nhiên cho gia chủ.

Sự pha trộn hợp lý giữa kiến trúc hiện đại và mái Nhật của công trình.

Các chi tiết của khuôn viên đều tạo hiệu ứng thẩm mỹ rất tốt

Hành lang dài Toriniwa truyền thống được thay bằng hai sảnh thang lớn so le nhau, vừa tạo sự lưu thông khắp căn nhà, vừa mang lại không gian rộng rãi và thông thoáng

Biệt thự mái Nhật hiện đại HG House là một công trình cải tạo ấn tượng, thay mới hoàn toàn diện mạo cho công trình và mang tới không gian sống thoải mái, gần gũi cho gia chủ.