Nếu gia chủ sở hữu một thửa đất rộng rãi, muốn tận hưởng cuộc sống bình yên trong một không gian nhà vườn xanh mướt thì biệt thự mái Nhật K.A Villa là một bản mẫu thiết kế lý tưởng, không chỉ tạo nên không gian sống hòa mình cùng thiên nhiên và vẫn rất thẩm mỹ, đầy đủ công năng.
Gia đình Ms Kiều Anh - Sóc Sơn đặc biệt mong muốn một không gian sống thoải mái, hòa hợp với thiên nhiên. Phong cách mái Nhật được gia chủ chốt ngay khi thấy phương án thiết kế, vừa tận dụng được lợi thế diện tích lớn của mặt bằng, vừa đặc biệt phù hợp với khí hậu Việt Nam.

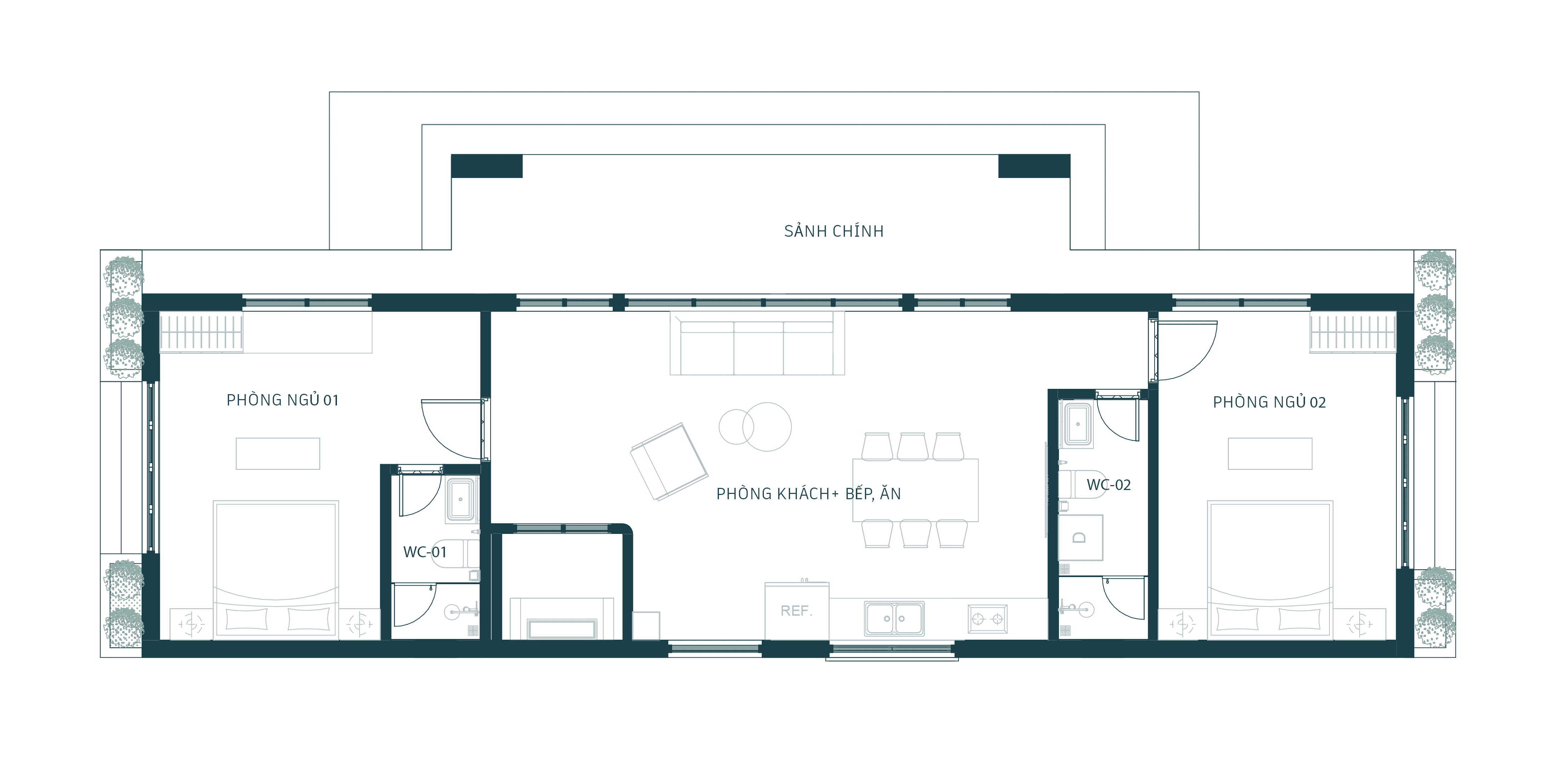
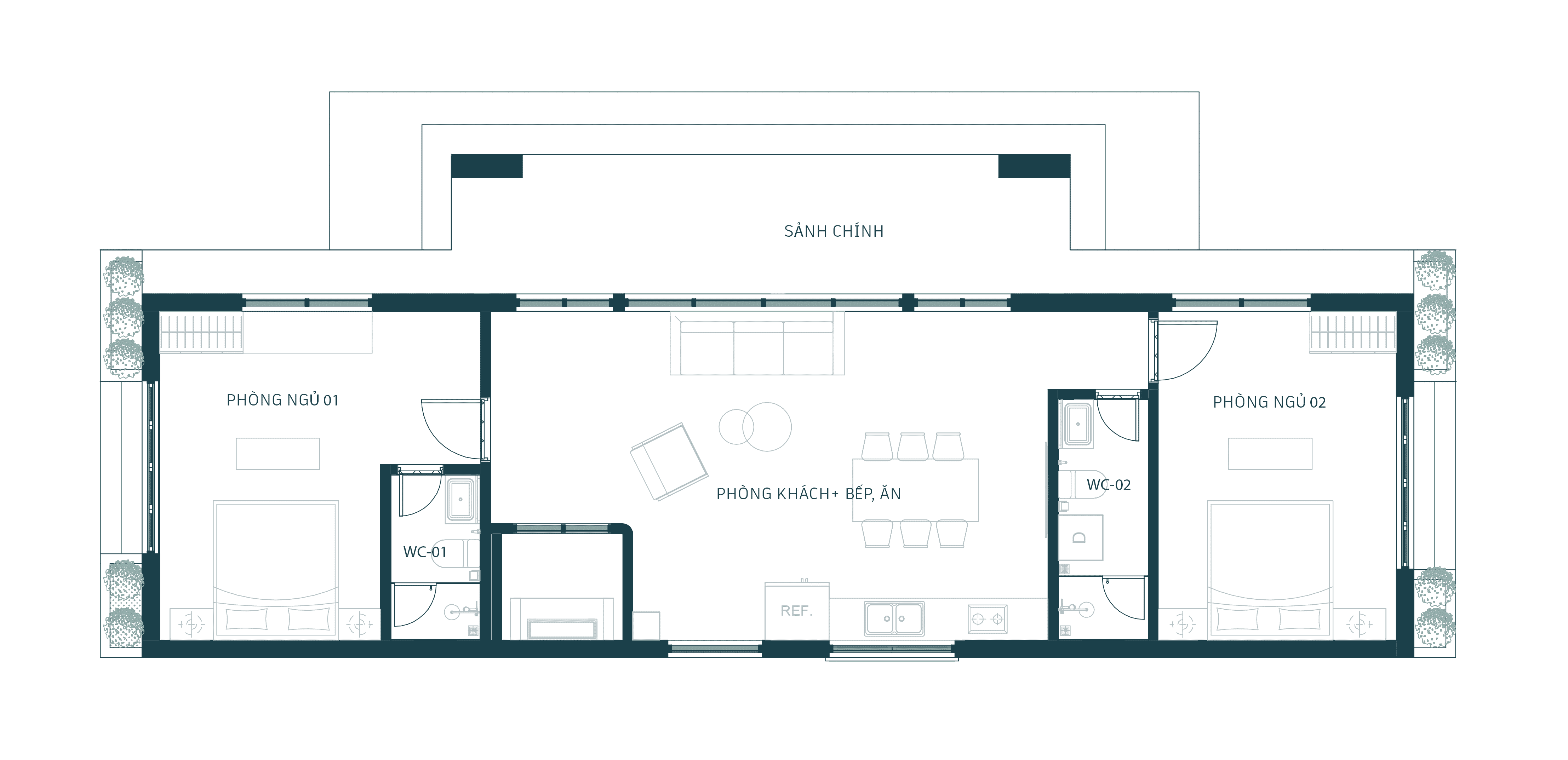
Kiến trúc một tầng đơn giản không chỉ giúp gia chủ tiết kiệm chi phí tối đa mà còn giúp các khu vực chức năng được sắp xếp thông minh hơn, tiện nghi hơn. Các phòng khách, phòng ngủ và bếp ăn kết hợp với nhau tạo thành một không gian mở rất thông thoáng.

Mặt bằng tầng áp mái

Với đặc trưng là mái nhà được thiết kế với độ dốc vừa phải để tối ưu hóa khả năng thoát nước và tránh ứ đọng hay ẩm mốc, phong cách mái Nhật ngày nay đã rất phổ biến đặc biệt là với loại hình nhà vườn.

Không gian sinh hoạt thoải mái, rộng rãi được gia chủ rất hài lòng

Toàn bộ công trình là các khoảng không gian "mở" kết nối với nhau hiệu quả, không chỉ mang đến cảm giác thoải mái mà còn rất thẩm mỹ

Mái Nhật không chỉ mang lại hiệu quả thẩm mỹ mà còn rất bền khi sử dụng, phù hợp với điều kiện khí hậu tại Việt Nam

Kiểu biệt thự vườn mái Nhật cũng là một trong những lựa chọn rất được gia chủ lựa chọn nếu sở hữu mặt bằng rộng rãi, phù hợp.

K.A Villa không chỉ là một công trình mái Nhật đơn thuần - Nó là tiêu chuẩn mới cho sự kiến hợp giữa kiến trúc mái Nhật và hiện đại. Vẫn mang vẻ thẩm mỹ khác biệt, K.A Villa còn đảm bảo công năng vận hành hiệu quả, mang tới công trình bền vững cho gia chủ.