N.S House là sự kết hợp độc đáo của văn hóa thờ cúng truyền thống của người Việt và kiến trúc hiện đại. Sự hòa trộn được cân nhắc kỹ lưỡng tạo nên không gian sống vừa đảm bảo công năng, vừa giữ vững giá trị cổ truyền của gia đình.
Mr Nam có mong muốn giữ lại khu vực thờ cúng truyền thống của gia đình, đồng thời muốn không gian sống mới mẻ, tiện nghi và hiện đại. Vì vậy, N.S House là dự án mà Diamond Housing cần vừa tạo ra không gian sống hiện đại, vừa kết hợp hài hòa với không gian truyền thống và vẽ nên sự liên kết vô hình nhưng mạnh mẽ.

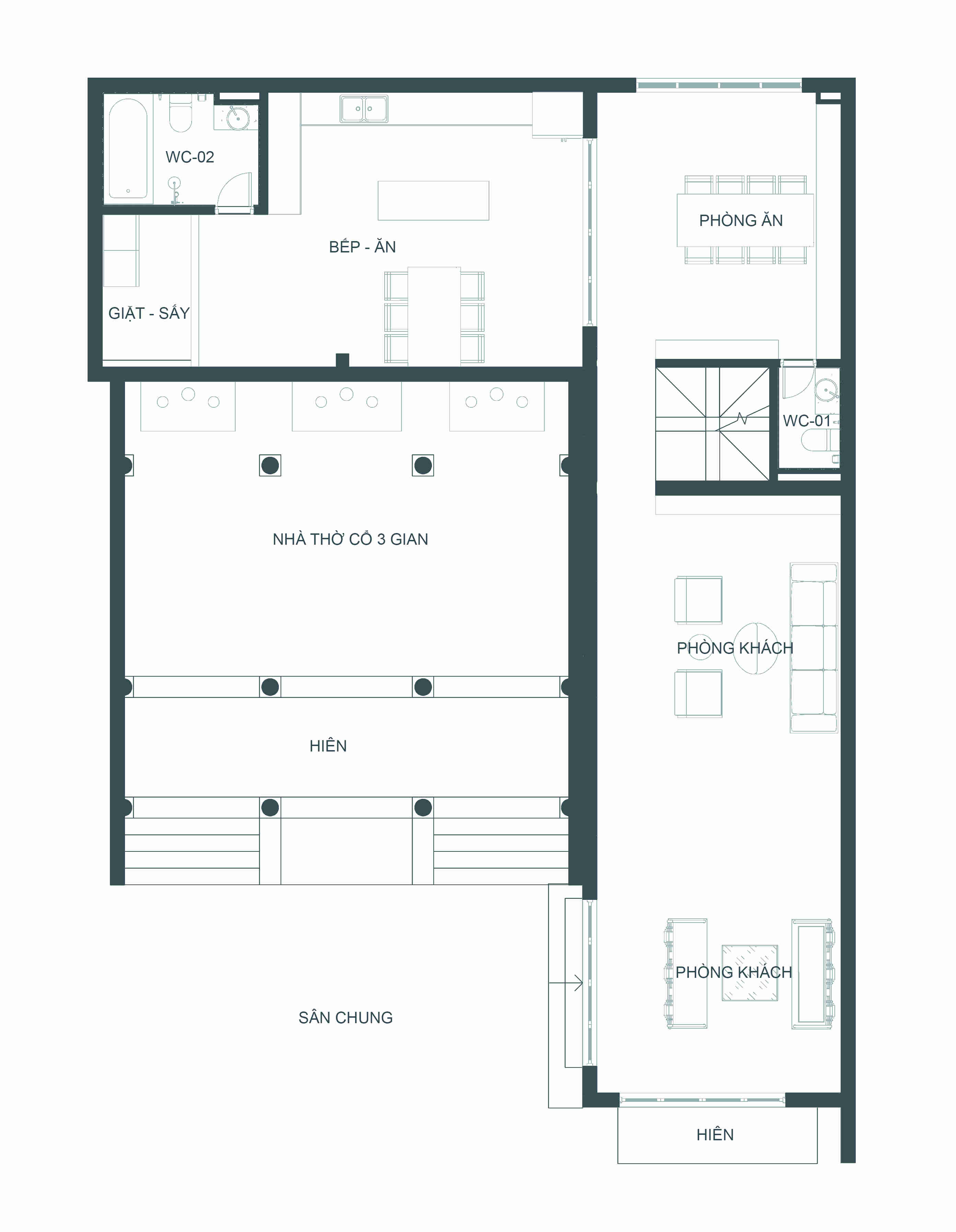
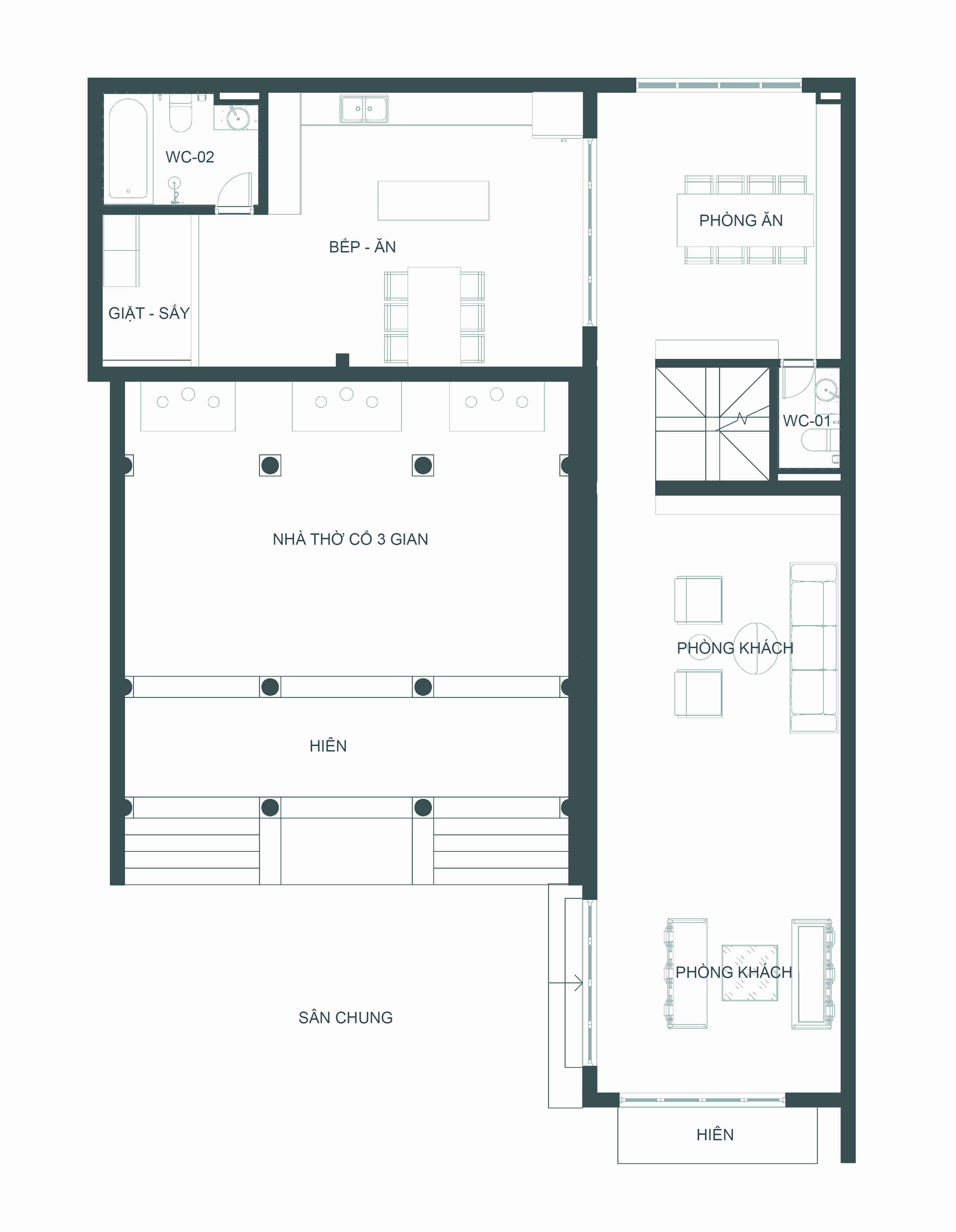
Khu vực tầng 1 chủ yếu là không gian bếp ăn và phòng khách. Đây cũng chính là khu vực mặt bằng mà Diamond Housing giữ lại không gian thờ cúng gồm 3 gian nhà cho gia chủ.

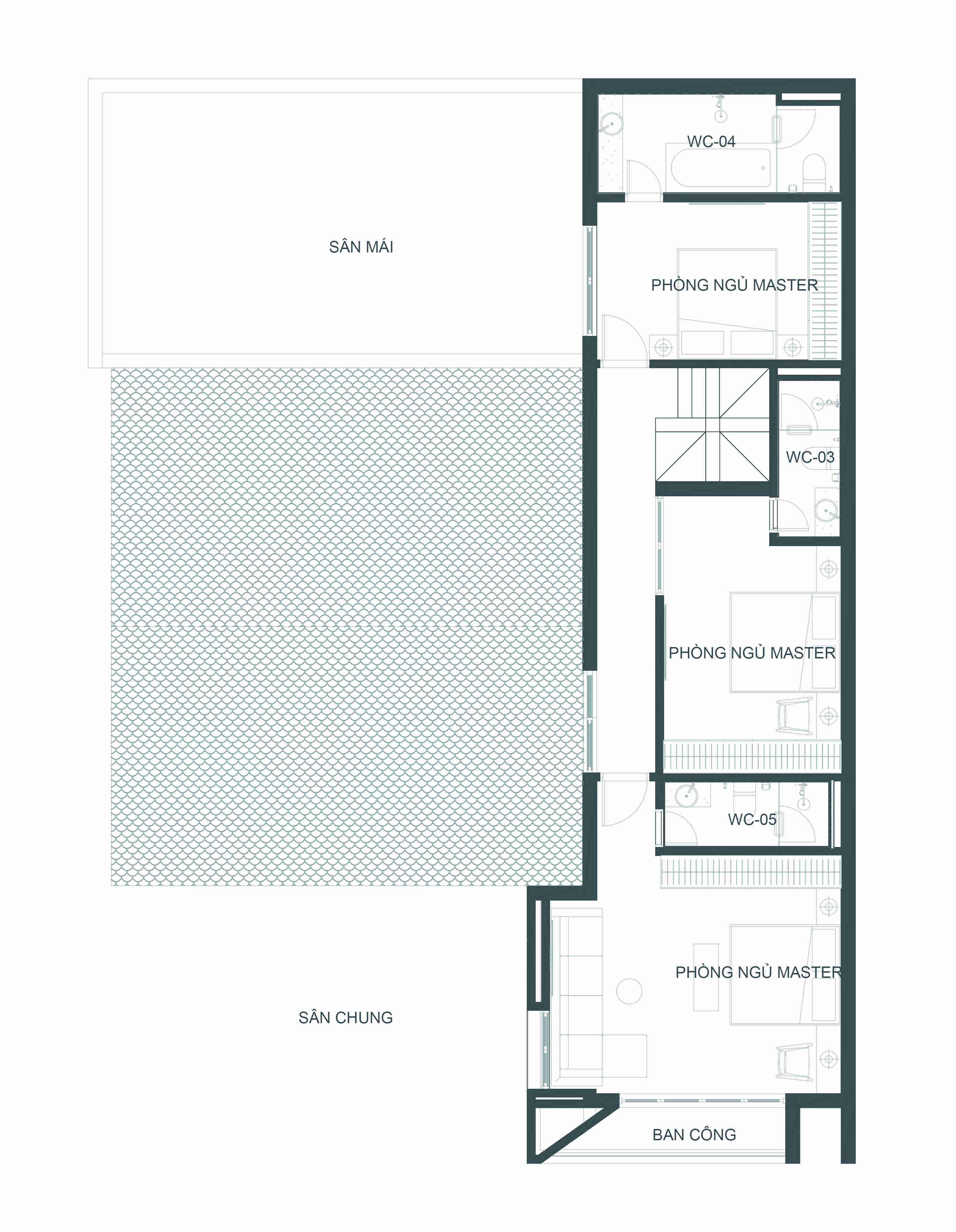
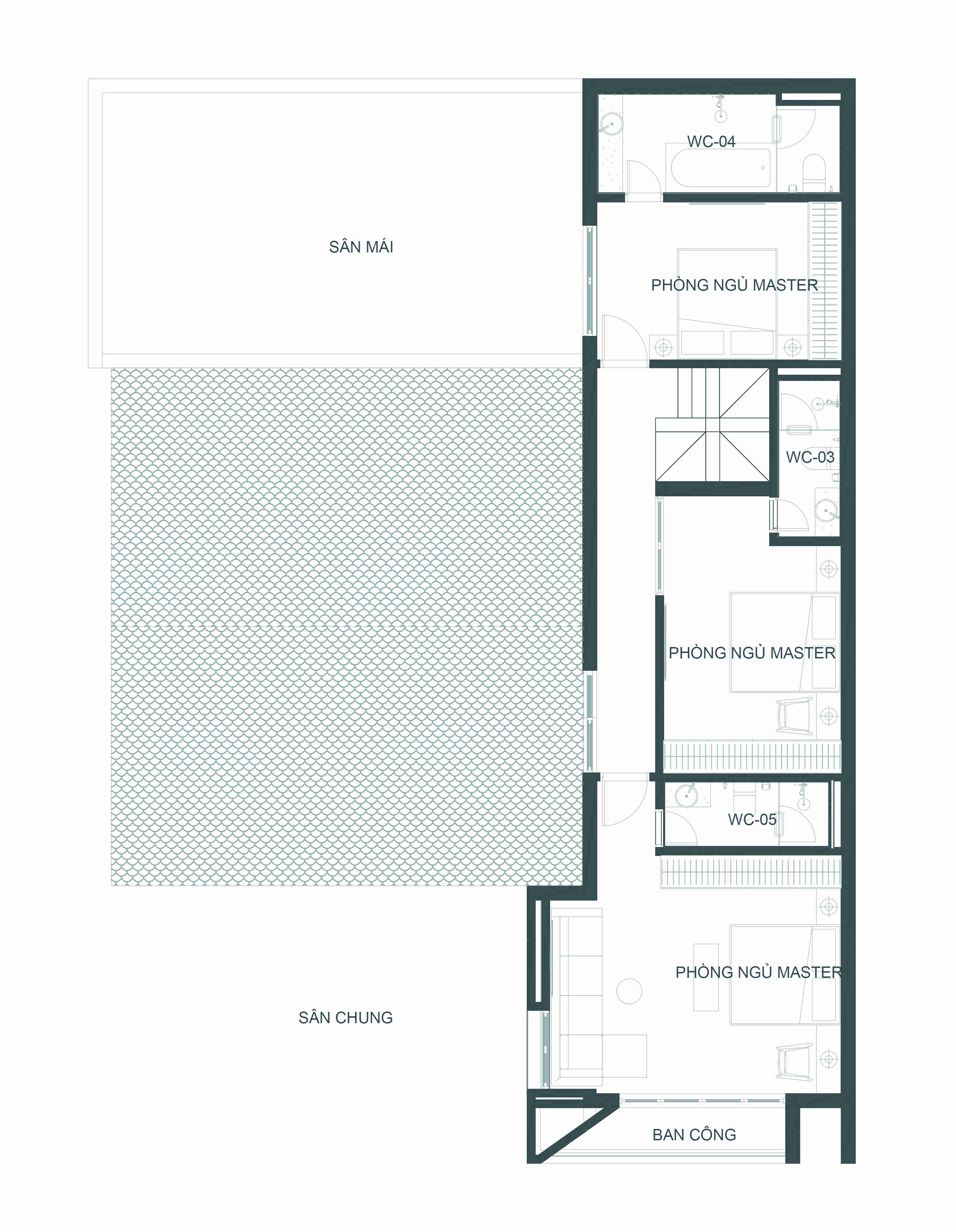
Khéo léo lồng ghép hai không gian truyền thống và hiện đại với nhau bằng các khoảng sân chung, sân mái - Khu vực tầng 2 được bố trí các phòng ngủ xen kẽ thông minh.

Không có quá nhiều lớp kiến trúc phức tạp, công trình được thiết kế để tối ưu các khoảng không mặt bằng hiệu quả.

Khu vực hiện đại được Diamond Housing tối giản đường nét và liên kết cùng nhau bằng một khoảng ban công đầy cây xanh phía sau.

Phân chia mặt bằng cần rất thông minh để gia chủ vẫn sở hữu không gian sinh hoạt thoải mái.

3 gian nhà thờ là điểm nhất thẩm mỹ rất riêng của công trình.

Cửa kính cũng được bố trí thông minh để lưu thông ánh sáng trong căn nhà.

Vật liệu của N.S House cũng được lựa chọn kỹ lưỡng về cả màu sắc và chất liệu. Các gam màu trung tính tệp với màu của sân, không làm giảm đi bản sắc truyền thông vốn có mà còn tăng sự liên kết với khu vực hiện đại hơn.

Với tiêu chí lắng nghe và đáp ứng nhu cầu của gia chủ một cách tối ưu nhất, N.S House chính là minh chứng cho việc sự kết hợp nhiều phong cách kiến trúc khác nhau là hoàn toàn toàn có thể. Với tư cách là một đơn vị thiết kế thi công chuyên nghiệp, Diamond Housing luôn đảm bảo công trình có thiết kế ấn tượng và hiệu quả sử dụng cao nhất.