Dự án A.S House là dự án nhà phố Diamond Housing thiết kế và thi công trọn gói. Với nhược điểm mặt bằng bị vát chéo, đội ngũ kiến trúc sư của Diamond Housing đã thực hiện thiết kế công trình với phong cách hiện đại và lối kiến trúc xanh đặc trưng - không chỉ giải quyết được bài toán khó nhằn của mặt bằng mà còn mở ra không gian rộng rãi, thoải mái và thông minh cho gia chủ.
Mr. Sơn mong muốn công trình gồm 3 tầng 1 tum theo phong cách hiện đại. Đồng thời, gia chủ cũng mong muốn căn nhà phải đầy đủ công năng sử dụng và tối ưu hóa triệt để diện tích mặt bằng của mình.
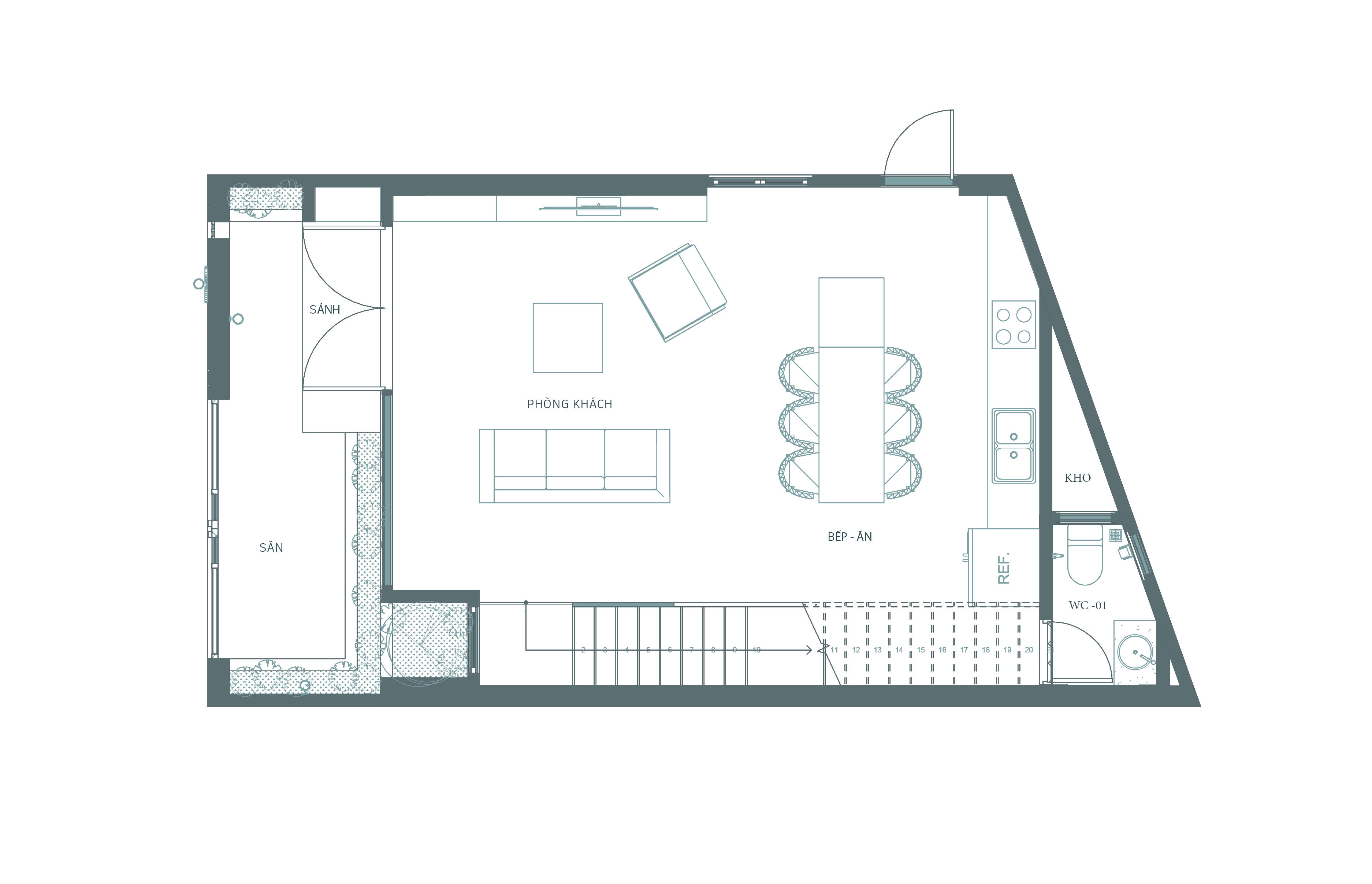
Khu đất của A.S house là khu đất phân lô có hình vát chéo, diện tích xây dựng 64m2/ sàn. Mặt bằng bị vát chéo là vấn đề đau đầu khi lên phương án thiết kế cho công trình. Điều này tạo ra cảm giác căn nhà bị bí, hẹp và khó tận dụng phần mặt bằng vị vát này.

Tầng 1 được bố trí phòng khách, sảnh, khoảng sân cùng phòng ngủ master. Bề mặt vát chéo được giải quyết bằng nhà vệ sinh và kho, đặt dưới ban công của tầng 2.

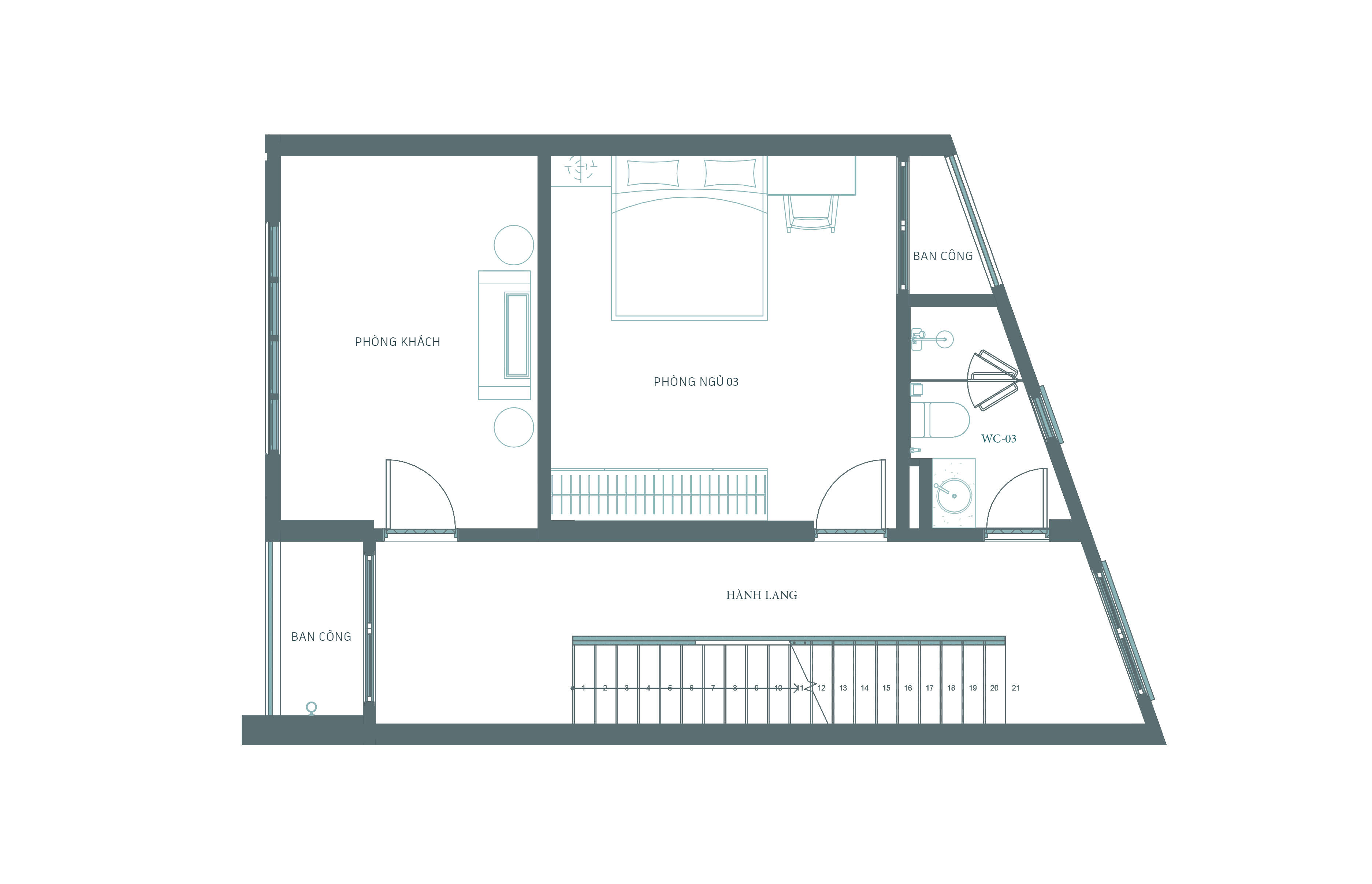
Không còn dấu hiệu của việc vát chéo, Diamond Housing tận dụng mặt này của mặt bằng mở ra một ban công và hành lang phía sau. Căn nhà trở nên thoáng mát, thoải mái và giúp không khí lưu thông. Phần dưới ban công cũng được tận dụng làm nhà kho và nhà vệ sinh, vừa thẩm mỹ đồng thời tối ưu hóa công năng sử dụng của phần vát chéo này.

Khoảng vát chéo của tầng 3 tiếp tục được tận dụng làm khoảng ban công rất thoáng. Tầng 3 cũng được bố trí phòng ngủ, phòng thờ, nhà vệ sinh một cách thông minh.

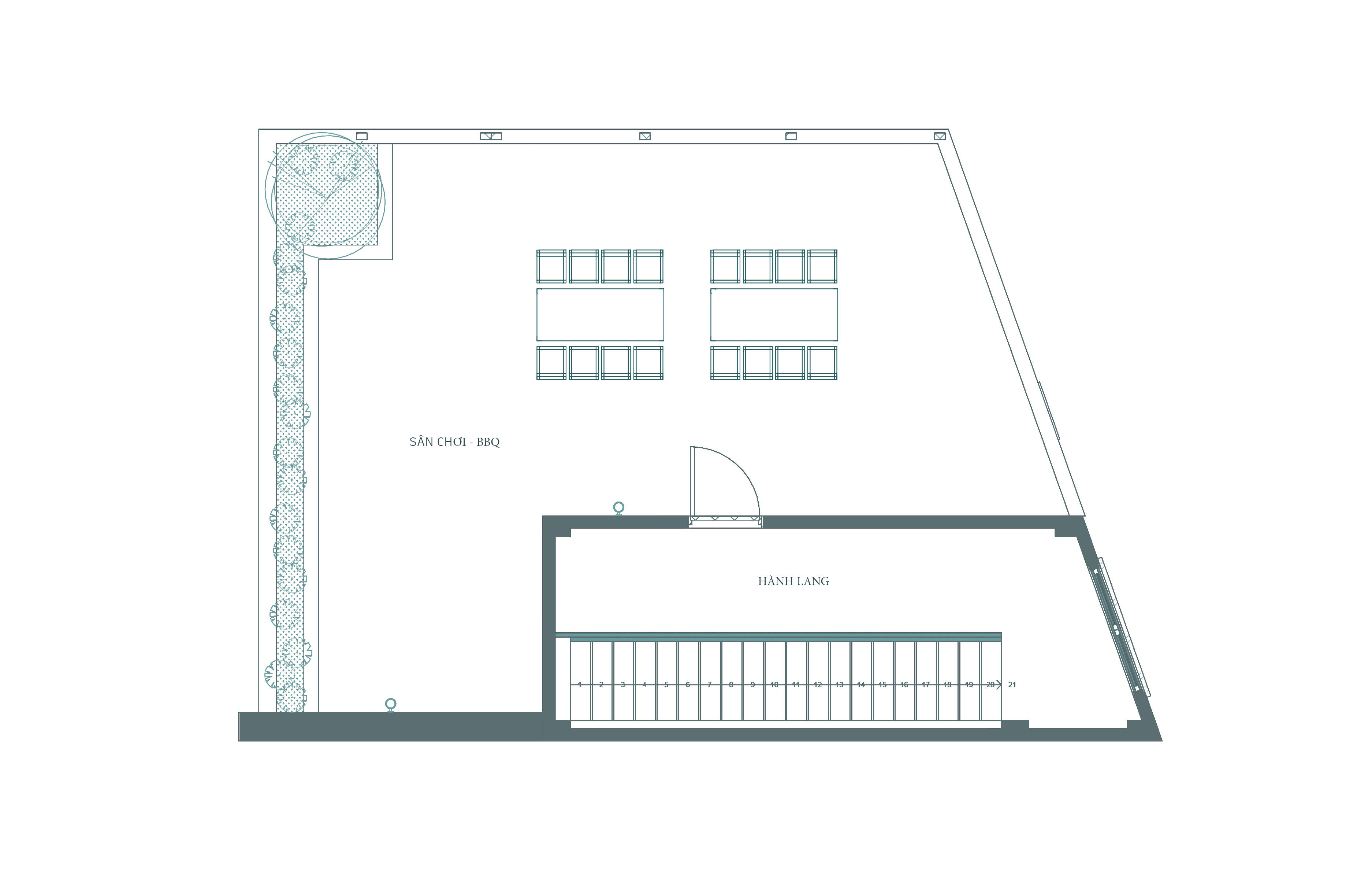
Tầng tum được bố trí sân chơi và BBQ để gia đình gia chủ thư giãn.

Mặt bằng thiết kế tầng áp mái

Kiến trúc xanh đặc trưng của Diamond Housing thể hiện rõ ở A.S House - cũng là điều khiến gia chủ rất hài lòng vì tận hưởng được sự hòa hợp với thiên nhiên của ngôi nhà.

Bên cạnh các khoảng không gian ban công phía sau, mặt tiền căn nhà cũng được bố trí các khoảng không gian nhỏ. Căn nhà không chỉ bớt nhàm chán về mặt thẩm mỹ mà còn rất thông thoáng, thoải mái khi sinh hoạt.

Nhà phố rất khó mở rộng về hai bên - Đó là lý do sự thông thoáng phía trước - sau của công trình cần được đặc biệt lưu ý.

Các khoảng ban công không chỉ tạo ra không gian thoải mái, rộng mở mà còn giúp ngôi nhà đón tối đa ánh sáng tự nhiên.

A.S House gây ấn tượng đặc biệt với các khoảng không gian mở được sắp xếp xen kẽ khắp công trình.

Phần không gian tầng thượng được tận dụng làm sân chơi và BBQ cũng được kết hợp với cây xanh, vừa tạo vẻ thẩm mỹ cho toàn bộ công trình vừa giúp gia chủ thư giãn thoải mái hơn.

Mặt tiền được thiết kế tối giản và hiện đại, bên trong là bếp ở tầng 1.

Có thể nói, A.S House tạo ra không gian sống rất rộng mở cho gia chủ. Gió và ánh sáng tự nhiên được lưu thông khắp công trình mang lại sự thoải mái, thịnh vượng và ấm no cho gia đình gia chủ.