Dự án Harmony Villa ấn tượng của Diamond Housing tại Sóc Sơn thực sự định nghĩa lại khái niệm "nghỉ dưỡng" và "chữa lành". Sở hữu 4 mặt tiền đắc địa, xung quanh là rừng cây và 2 hồ nước lớn, căn villa mang đầy đủ yếu tố để trở thành biệt thự nghỉ dưỡng đáng trải nghiệm nhất tại đây.
Đặc biệt yêu thích các hình khối, Mr Nhạ mong muốn công trình của mình tận dụng tối đa lợi thế tuyệt vời của mặt bằng: 4 mặt tiền đắc địa, xung quanh là rừng cây và 2 hồ nước lớn. Gia chủ với mục tiêu xây dựng villa nghỉ dưỡng kỳ vọng đây sẽ là công trình bề thế, hiện đại, tối ưu công năng và trở thành địa điểm nghĩ dưỡng không thể bỏ qua khi đến với Sóc Sơn.

Mặt bằng tầng 1 được bố trí sảnh rộng rãi cùng khu vực phòng khách, bếp dùng chung đi kèm 2 phòng ngủ master với view hồ ấn tượng.

5 phòng ngủ master, 5 nhà vệ sinh là các khu vực chức năng được bố trí ở tầng 2. Diamond Housing luôn tận dụng tối đa số lượng phòng ngủ cho các căn villa nghỉ dưỡng nhưng đồng thời luôn đảm bảo các phòng ngủ này đầy đủ công năng của mình.

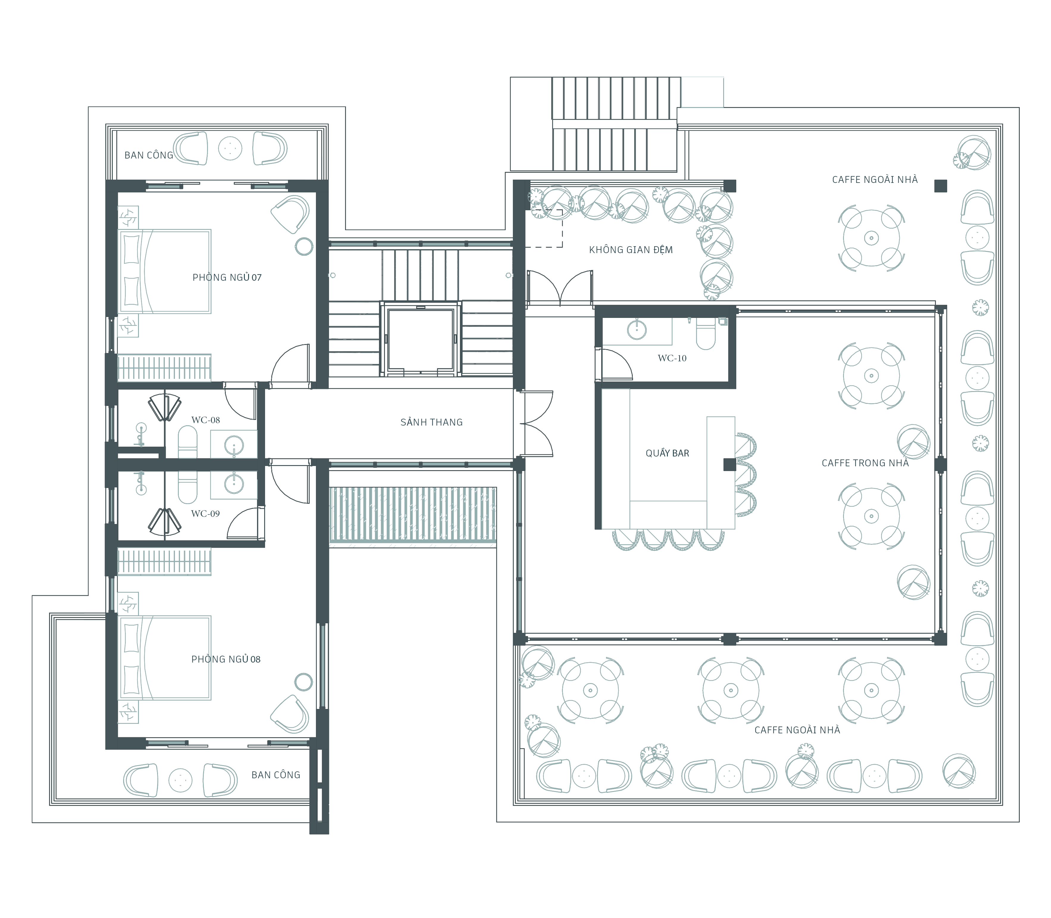
Khu vực tầng 3 là 2 phòng ngủ master và khu vực ban công, caffe giải trí cho khách hàng.

Mặt bằng định vị tầng 4


Hoàn toàn không ở trong phim - kiến trúc hiện đại bất đối xứng đặc trưng của Diamond Housing trong rất nhiều công trình đa mặt tiền trước đây - được các kiến trúc sư khoác lên Harmony Villa vẻ sang trọng và bề thế không ngờ.

Một căn biệt thự nghỉ dưỡng không thể là một khối kiến trúc cứng nhắc và nhàm chán - Đó là lý do Diamond Housing sắp xếp thông minh các khối phòng chứng năng, các lớp kiến trúc xen kẽ nhau, hòa mình vào kiến trúc xanh độc đáo.

Các hình khối kiến trúc ấn tượng đúng như mong muốn của Mr Nhạ tạo cho Villa bẻ bề thế sang trọng.

Villa nằm ấn tượng giữa trung tâm mặt tiền đắc địa

Không chỉ có lối kiến trúc hiện đại, thông minh, từng khu vực chức năng của Harmony Villa được đội ngũ kiến trúc sư "chắt chiu tinh hoa" một cách tuyệt đối

Số lượng các phòng chức năng đuọc tối ưu hóa ở mức độ cao nhất

Không chỉ sở hữu kiến trúc ấn tượng, khuôn viên cây xanh của Harmony Villa cũng được chú trọng.

Toàn bộ nội thất của villa sử dụng các bảng màu trung tính nhưng được kết hợp hoàn hảo với thiết kế kiến trúc mở, thoáng và đan xen các chi tiết hiện đại, tiện nghi. Các phòng chức năng đều sử dụng rất nhiều vật liệu kính, mang lại cảm giác thư thái, nhẹ nhàng cho du khách.

Harmony Villa hòa cùng vào núi rừng Sóc Sơn như một giai điệu của hạnh phúc, trở thành không gian nghỉ dưỡng, chữa lành không thể bỏ qua khi đến với Sóc Sơn.