Dự án Q.H House - Mr Quốc, Mê Linh được Diamond Housing thiết kế và thi công trọn gói. Với đặc điểm nhà lô, khó lòng lấy sáng từ hai bên, đội ngũ kiến trúc sư của Diamond Housing đã sử dụng giếng trời kết hợp cùng nhiều cách bố trí công năng khác nhau để mang lại công trình thoáng mát, đón ánh sáng tự nhiên tốt nhất và sinh hoạt tiện nghi nhất cho gia chủ.
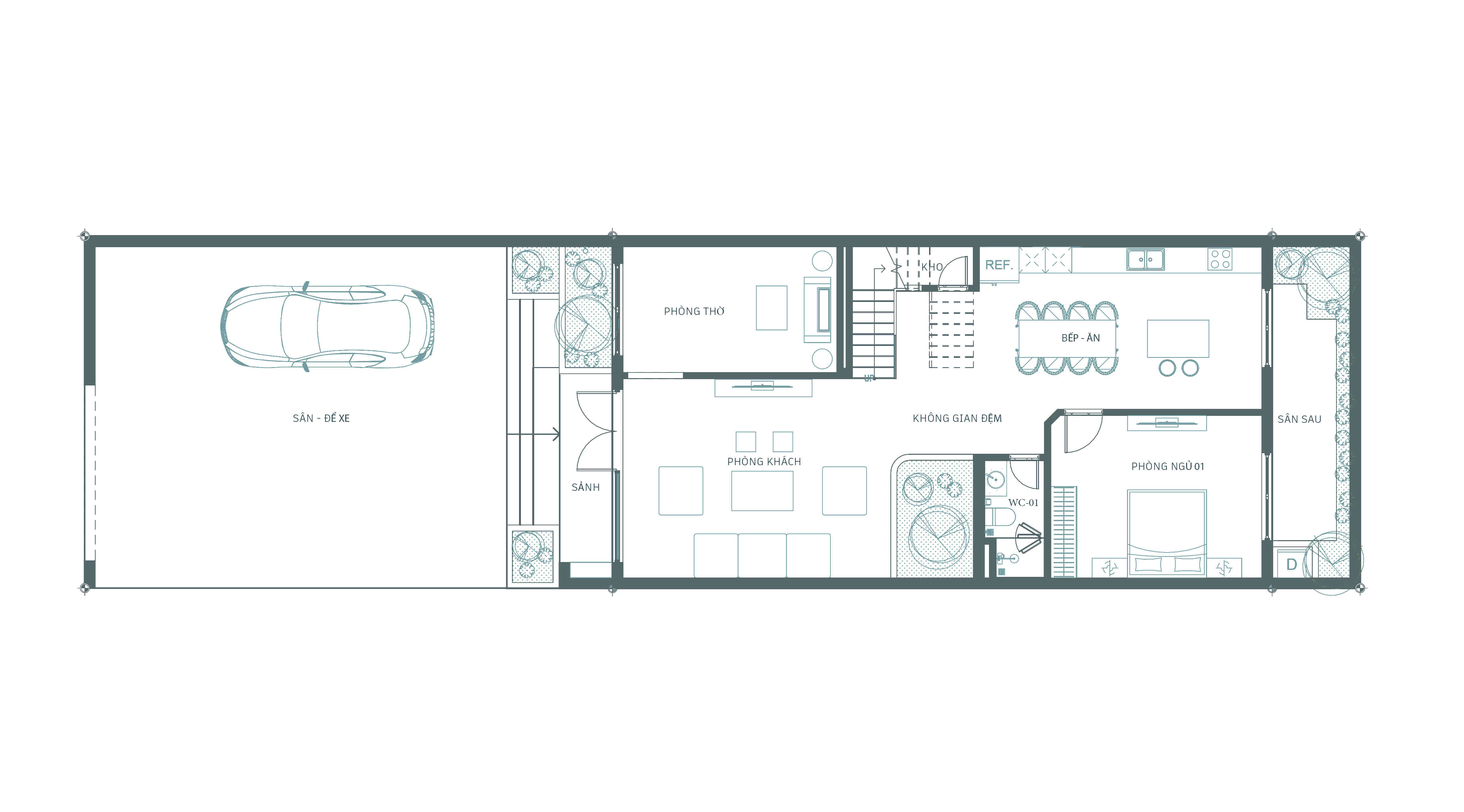
Khu đất của Q.H House là khu đất phân lô có diện tích 232m2, diện tích xây dựng 130m2/ sàn, nhưng cần đảm bảo đầy đủ công năng. Bên cạnh đó, Mr Quốc cũng muốn không gian mở kết nối phòng khách và bếp, đặc biệt thoáng và đón được ánh sáng tự nhiên.

Một khoảng không gian đệm được Diamond Housing thiết kế thông minh tạo độ thông thoáng cho căn nhà.

Với nhược điểm nhà lô, khó lòng lấy sáng từ hai bên, đội ngũ kiến trúc sư của Diamond Housing đã sử dụng một giếng trời ở giữa nhà - Vừa giúp tận dụng ánh sáng tự nhiên, vừa tạo ra sự lưu thông không khí thoáng đãng cho công trình.

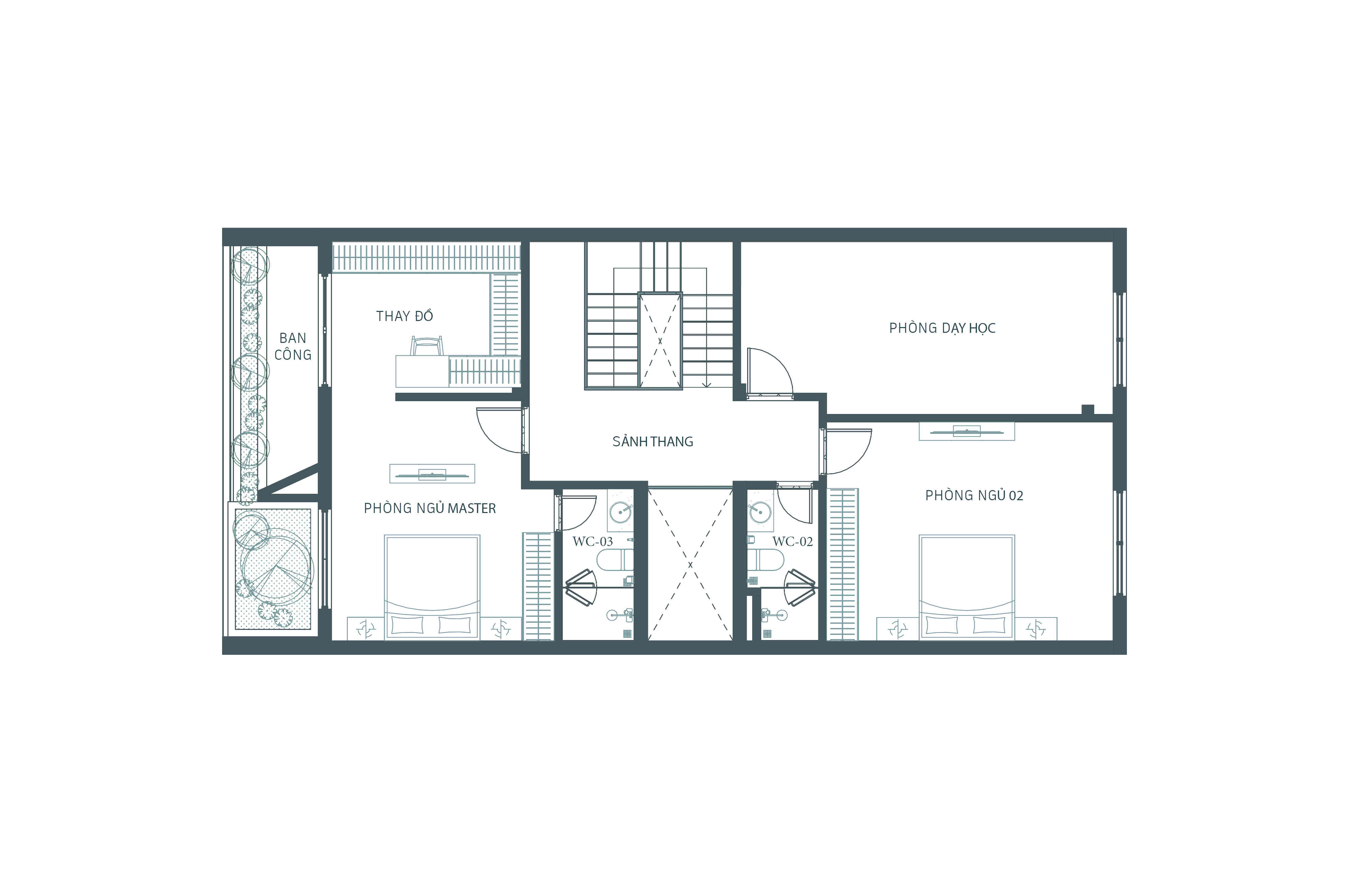
Tầng 2 được bố trí 1 phòng ngủ master, 1 phòng ngủ nhỏ và cả phòng dạy học cho gia chủ.

Mặt bằng thiết kế tầng áp mái.

Tổng thể Q.H House là một công trình mở, thoáng đãng với lối kiến trúc xanh đặc trưng của Diamond Housing.

Q.H House có hệ cây xanh thông 2 tầng kết hợp với sự bài trí công năng thông minh - Kết nối giữa phòng khách và bếp, lan tỏa ánh sáng và luồng gió tự nhiên toàn bộ các phòng.

Các đường nét kiến trúc bất đối xứng tạo vẻ thẩm mỹ ấn tượng cho căn nhà

Một không gian xanh, thoải mái không nhất thiết phải đặt trên một mặt bằng rộng thênh thang với chi phí thi công cao ngất. Các khoảng không gian xanh mướt được Diamond Housing cài cắm khắp công trình, tạo ra sự kết nối hoàn hảo.

Giải pháp giếng trời và không gian xanh đã giải quyết được bài toán của Q.H House khi không thể thiết kế mở rộng hay có cửa sổ kính ở hai bên.

Khoảng ban công xanh "đắt giá" của công trình

Do không có diện tích lớn, các tiểu cảnh của Q.H House được tối giản để phù hợp với mặt bằng.

Tuy nhiên, nhờ lựa chọn kích thước và vật liệu thông minh cũng như sự đồng nhất trong thiết kế kiến trúc mà tổng thể căn nhà vẫn rộng rãi, thoải mái và các tiểu cảnh cũng rất tinh tế, vừa đủ.

Hệ thống cửa kính góp phần kết nối không gian bên trong và ngoài căn nhà.

Các đường nét kiến trúc dù được tối giản nhưung không hề nhạt nhòa mà luôn đảm bảo tinh thần thẩm mỹ.

Diamond Housing hoàn toàn dựa vào nhu cầu, tính cách và bức tranh tài chính của gia chủ để trao tay chìa khóa một không gian tiện nghi nhất. Q.H House là một ví dụ cho việc không cần một nguồn ngân sách quá lớn hay một mặt bằng quá rộng để có thể tận hưởng không gian xanh hoàn hảo.