Một trong những vấn đề của thiết kế nhà phố chính là mặt tiền hẹp, không thể mở rộng sang hai bên do các công trình liền kề sát nhau. Phong cách hiện đại thường được sử dụng cho các công trình này vì dễ thiết kế, dễ thi công và ngân sách vừa phải. Tuy nhiên, để thực sự tạo nên một không gian thoáng mát, đáng sống và vẫn đủ thẩm mỹ, công năng không phải là bài toán đơn giản.
Cũng như nhiều căn nhà phố khác, HG House có mặt tiền khá nhỏ. Các kiến trúc sư của Diamond Housing lựa chọn phát triển kiến trúc theo chiều cao một cách bất đối xứng để cài cắm liên tục các khoảng không gian, tạo sự lưu thông và điều hòa.
Ms Hằng đặt ra bài toán quan trọng nhất về việc tạo ra không gian sống đủ thoáng đãng, có sự kết nối bên trong và bên ngoài, kiến trúc và thiên nhiên cho căn nhà. Tuy nhiên, diện tích mặt tiền của công trình lại khá hẹp. Vì vậy, việc bố trí các phòng chức năng một cách thông minh là vô cùng quan trọng để tạo nên không gian sống thoải mái cho gia đình gia chủ.

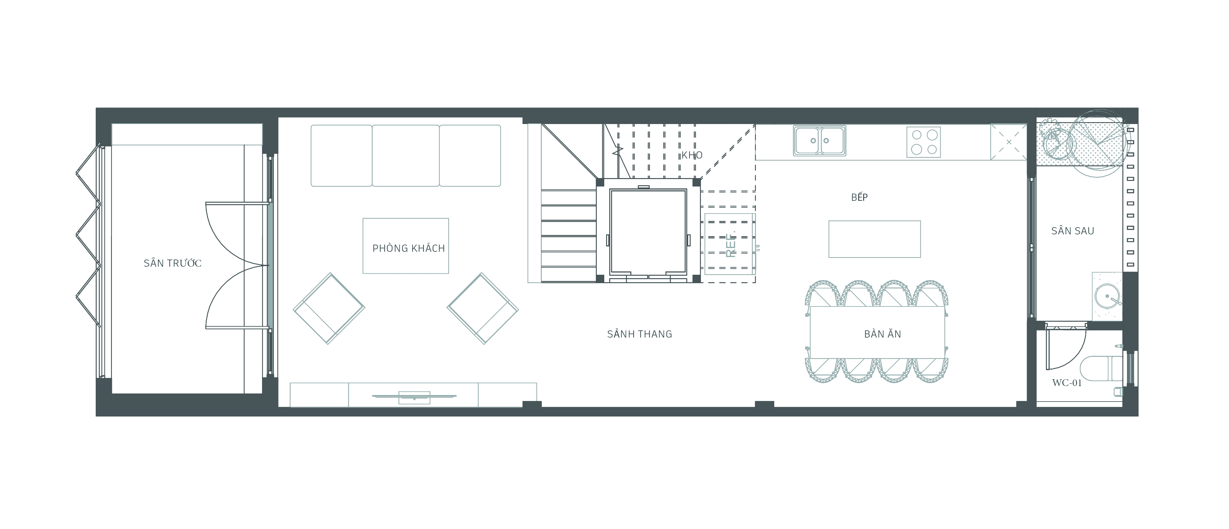
Tầng 1 được bố trí phòng khách, sảnh và bếp hoàn toàn thông nhau rất rộng rãi.

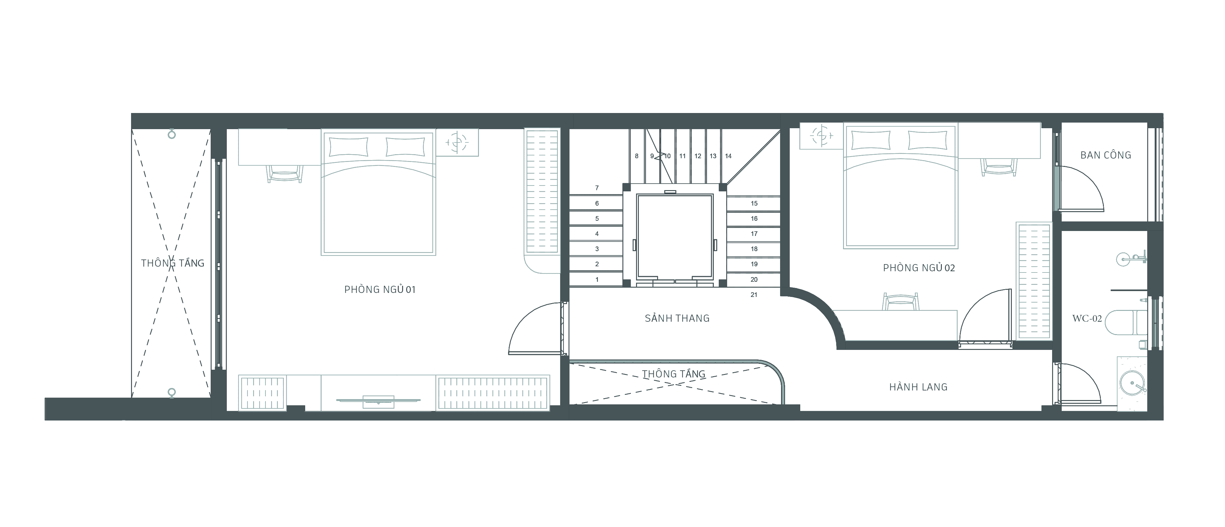
Khu vực tầng 2 là 2 phòng ngủ lớn kết hợp 2 khoảng không thông tầng.

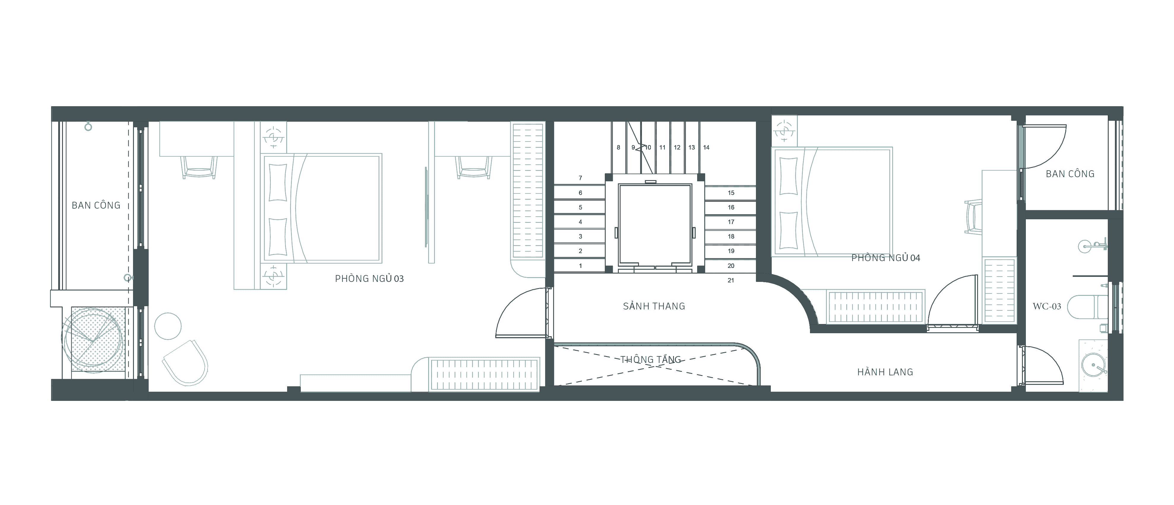
Tầng 3 cũng được bố trí các phòng ngủ xen kẽ khoảng không thông tầng và các ban công nhỏ.

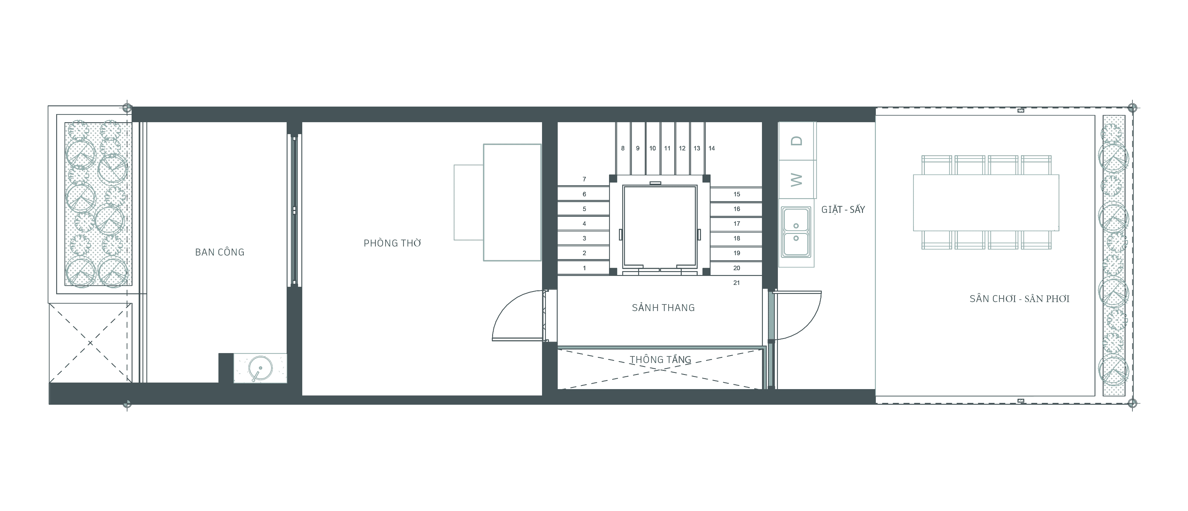
Các khoảng không thông tầng được nối dài lên tới tầng 4 và kết nối với khu vực sân chơi.
Mặt tiền được thiết kế bất đối xứng và có nhiều lớp kiến trúc lồng ghép nhau. Các ban công đua ra với lan can kính, tạo không gian mở và tăng ánh sáng tự nhiên.

Nhờ thiết kế kiến trúc thông minh, tuy mặt tiền hẹp nhưng công trình không bị quá bí.

Các ban công cũng được bố trí linh hoạt để đón sáng tự nhiên hiệu quả.

Không xanh được bố trí ở ban công các tầng, đặc biệt là ở khu vực trung tâm mặt tiền, kết hợp giàn pergola tạo sự tươi mát và gần gũi với thiên nhiên, đồng thời làm mềm mại kiến trúc hiện đại.

Mặt tiền có vẻ ngoài rất thẩm mỹ của công trình

Sử dụng đa dạng vật liệu hiện đại như kính, gỗ và kim loại, vừa tạo tính thẩm mỹ vừa đảm bảo vận hành bền bỉ.

Các khoảng không gian thông nhau linh hoạt và kết hợp giữa bên trong và bên ngoài căn nhà

Có thể nói, giải pháp kiến trúc của HG House cũng chính là giải pháp đặc trưng và kiểu mẫu để giải quyết bài toán mặt bằng mặt tiền hẹp của các căn nhà phố ở Việt Nam. Không cần diện tích quá rộng, công trình vẫn có thể đáp ứng và tạo nên không gian sống thoải mái cho gia chủ.