Như một "Nụ hôn kiểu Pháp trên môi cô nàng Á Đông" - L.H House là công trình nhà phố thiết kế theo phong cách Indochine kết hợp hiện đại độc đáo. Kiến trúc sư của Diamond Housing đã pha trộn hài hòa vẻ đẹp tân cổ phương Tây và cảm hứng Việt Nam mạnh mẽ, hòa cùng lối kiến trúc xanh đặc trưng tạo nên một Khu vườn Đông Dương ấn tượng.
Gia đình anh Lực, chị Hà sở hữu một khu đất phân lô với mặt tiền khiêm tốn. Tuy nhiên, anh chị muốn một công trình hiện đại, phong cách Indochine cách tân mới đồng thời hài hòa với thiên nhiên, thực sự tạo nên một không gian gần gũi, thoải mái cho các thành viên trong gia đình.

Khu vực tầng 1 là phòng khách, bếp và phòng ngủ master.

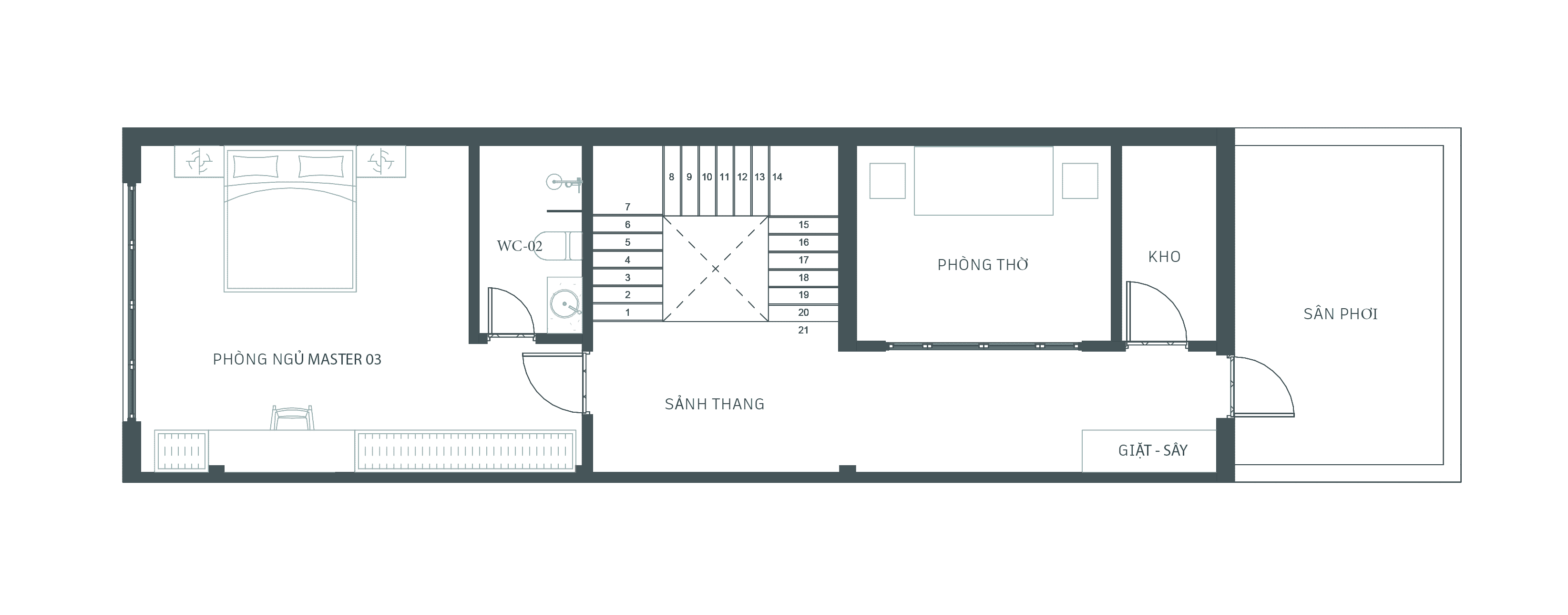
Tầng 2 được bố trí 2 phòng ngủ master cùng phòng sinh hoạt chung và khu vực thờ cúng.

Khu vực tầng 3 là 1 phòng ngủ master, kho và khu vực ban công.
Với khu đất phân lô mặt tiền khiêm tốn, các khu vực chức năng của căn nhà phải được thiết kế thông minh để đảm bảo tận dụng tối đa diện tích.

L.H House được thiết kế cửa ra vào và 2 ban công bằng kính thoáng hoàn toàn, không chỉ đón trọn ánh sáng tự nhiên mà còn khiến không gian mặt tiền được mở rộng.

Mặt bằng ngập tràn cây xanh của ngôi nhà

Đặc trưng phong cách Indochine kết hợp hiện đại với các chi tiết phào, vòm cong cửa tạo ấn tượng thị giác mạnh mẽ.

Hệ thống vật liệu với sơn ghi đậm kết hợp trần gỗ, mái che khung thép không chỉ bền bỉ khi vận hành mà còn hài hòa với thiên nhiên.

Sơn ghi đậm kết hợp trần gỗ, mái che khung thép theo phong cách định hướng

Màu sắc hài hòa, chi tiết phào, vòm cong cửa sử dụng hợp lý

Tổng quan, L.H House là một công trình phong cách hiện đại kết hợp Indochine ấn tượng, pha trộn hài hòa vẻ đẹp tân cổ phương Tây và cảm hứng Việt Nam mạnh mẽ, tạo ra không gian sống không chỉ đầy đủ công năng mà còn rất thoải mái cho gia chủ.