V.A House là một công trình được Diamond Housing thiết kế - thi công trọn gói. Với tổng diện tích xây dựng khá lớn, đây là dự án kết hợp nhà ở với văn phòng làm việc linh động cho gia chủ.
Mr Việt Anh mong muốn một công trình hiện đại, vừa sử dụng làm nhà ở vừa kết hợp làm văn phòng và mặt bằng cho thuê. Phong cách hiện đại được Diamond Housing gợi ý để đáp ứng mục đích vừa sử dụng đầy đủ công năng, vừa sử dụng để cho thuê của gia chủ. Đồng thời, một công trình đa mục đích được đội ngũ kiến trúc sư cân nhắc rất kỹ để tối ưu hóa công năng của từng khu vực.

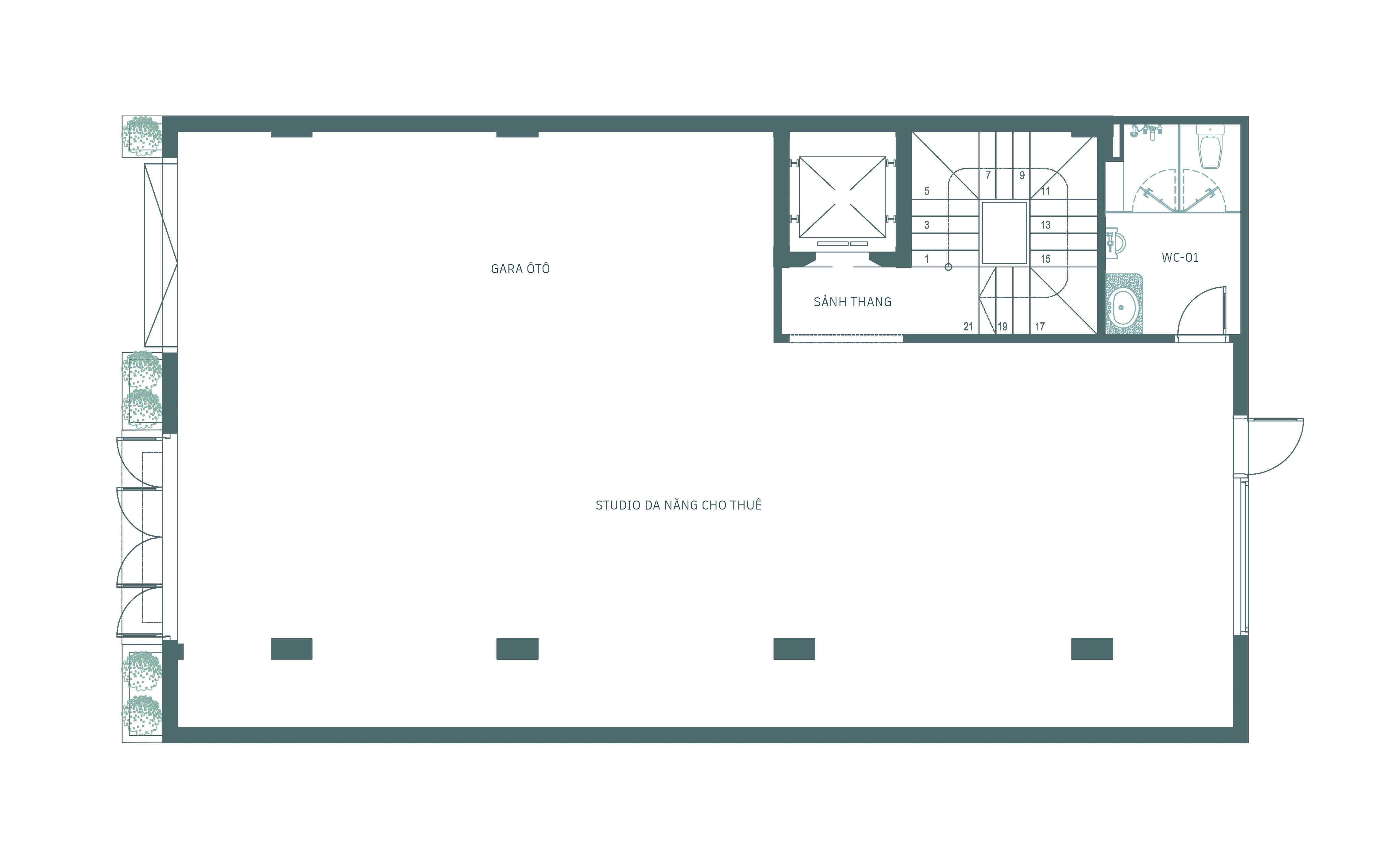
Khu vực tầng 1 được bố trí là studio đa năng cho thuê, thêm một công trình phụ và khu vực sảnh thang.

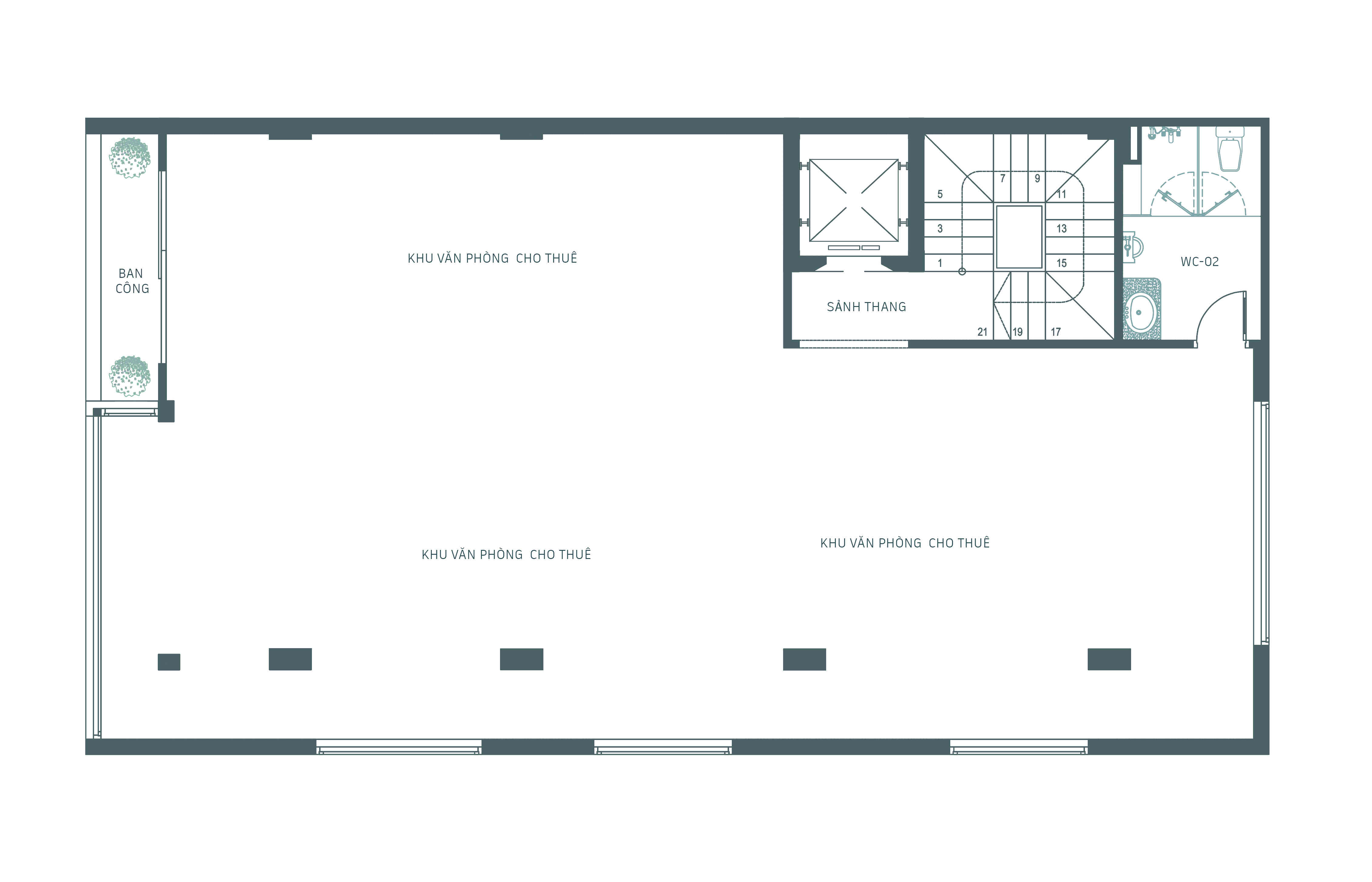
Tầng 2 được bố trí linh động 3 khu vực văn phòng cho thuê

Khu vực tầng 3 tiếp tục được sử dụng để làm văn phòng cho thuê

Khu vực sinh hoạt của gia đình bắt đầu từng tầng 4. Vì vậy, các phòng ngủ của khu vực này được bố trí xen kẽ với nhiều khoảng ban công thông thoáng khác nhau, tạo ra không gian nghỉ ngơi thông thoáng cho gia chủ.

Trái với nhiều thiết kế phổ biến, khu vực phòng khách được bố trí trên tầng cao nhất. Tuy nhiên cách sắp xếp này lại rất phù hợp với mục tiêu vừa sử dụng làm nhà ở và làm văn phòng cho thuê của gia chủ.

Ở mặt tiền, V.A House được thiết kế một đường kiến trúc bất đối xứng tạo vẻ thẩm mỹ ấn tượng cho công trình

Gara ô tô ở tầng 1 khiến công trình trở nên hiện đại và bề thế

Thiết kế của các khu vực cho thuê vẫn mang tính thẩm mỹ khác biệt nhờ lối kiến trúc xanh tiếp tục được Diamond Housing sử dụng

Phòng khách và không gian BBQ ở trên tầng thượng của công trình, là không gian sinh hoạt chung của gia đình gia chủ.

Công trình thông thoáng và nhận nhiều ánh sáng tự nhiên

Cửa sổ và cửa kính bố trí thông minh để tạo sự lưu thông cả khu vực cho thuê và khu vực sử dụng.

Với các công trình sử dụng đa mục đích, kiến trúc hiện đại thường được sử dụng để vừa phù hợp với nhiều mục đích sử dụng khác nhau, vừa tối ưu hóa được công năng sử dụng và chi phí thi công thấp so với các phong các kiến trúc khác. V.A House với sự sắp xếp công năng thông minh không chỉ đáp ứng mục tiêu kinh doanh của gia chủ mà còn mang lại không gian sống thoải mái, tiện nghi.