Nhà phố một tầng là lựa chọn của rất nhiều gia chủ vì chi phí vừa phải và là không gian sinh hoạt rất thuận tiện cho tất cả các thành viên. Tuy nhiên, với không gian nhỏ, việc tạo ra sự thoáng đãng, thoải mái, không bị chật chội, bí bách không phải là một bài toán dễ. LINH House với thiết kế kiến trúc thông minh trở thành một không gian sống thoáng đãng, thoải mái mà gia chủ rất hài lòng.
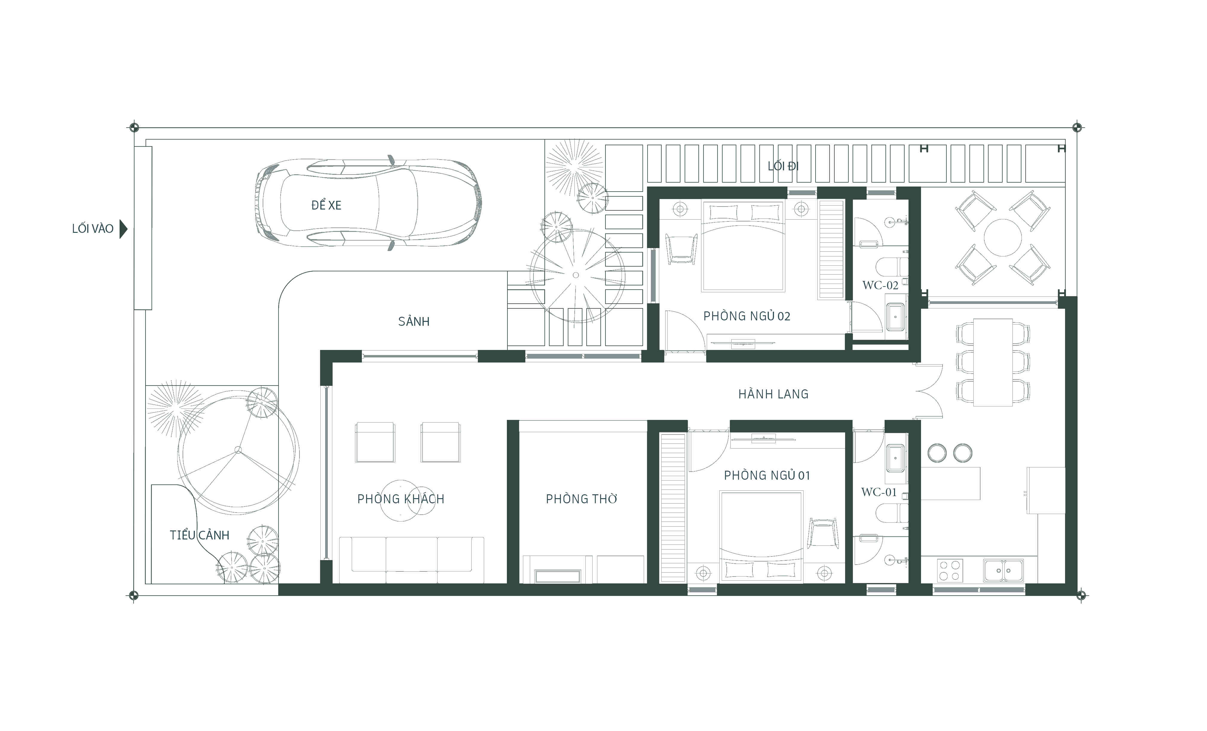
Ms Linh mong muốn một công trình 1 tầng kiểu nhà vườn được thiết kế theo phong cách hiện đại. Không gian cần tối ưu bao gồm: phòng khách, bếp ăn, không gian thờ riêng cùng 2 phòng ngủ, công trình phụ và khu vực giặt phơi ngoài nhà. Với diện tích không lớn và chỉ xây 1 tầng, để sắp xếp tối ưu các không gian trên, đội ngũ kiến trúc sư của Diamond Housing đã tính toán rất chi tiết để vừa tạo ra không gian thoải mái, vừa cân đối bài toán tài chính cho gia chủ. 
Mặt bằng định vị tầng 1 cũng là mặt bằng sắp xếp công năng của toàn bộ căn nhà. Không chỉ đáp ứng được các khu vực chức năng, LINH House còn được bố trí nhiều khoảng không gian nghỉ thông thoáng khắp căn nhà, tạo sự thoải mái cho gia chủ.

Đặc trưng của LINH House là các đường kiến trúc và hệ cửa bo tròn theo đúng tính cách và sở thích của gia chủ.

Các đường cong này mang lại vẻ nhẹ nhàng, thanh toát cho căn nhà.

Phần cửa vẫn được thiết kế bo tròn nhưng khác biệt

Khu vực này tuy được bố trí đèn một cách tối giản nhưng vẫn mang lại thẩm mỹ thú vị và hiện đại

Căn nhà chủ yếu sử dụng hệ thống cửa kính để tạo sự kết nối. Bên cạnh đó, ánh sáng nhân tạo cũng được bố trí để tạo chiều sâu và điểm nhấn cho kiến trúc

Không gian xung quanh nhà hòa hợp với thiên nhiên bởi rất nhiều cây xanh

Kiến trúc đặc trưng của nhà vườn ở LINH House được biến tấu để mang đầy hơi thở hiện đại

Khu vực khuôn viên tuy không rộng nhưng được điểm xuyết cây xanh tinh tế, tạo sự kết nối với thiên nhiên.

Không chỉ đón được ánh sáng tự nhiên vào ban ngày, LINH House với các lớp kiến trúc điểm xuyết bởi ánh sáng nhân tạo thực sự có chiều sâu khi đêm xuống.

Với chi phí thi công không quá cao, phù hợp với các cặp vợ chồng mới cưới, LINH HOUSE giống như một khu vườn xanh mát với những điểm nhấn tinh tế được Diamond Housing cài cắm xuyên suốt dự án, trở thành một trong những lựa chọn hoàn hảo cho gia chủ.